Kursy walut NBP: USD 3,98 | EUR 4,32 | CHF 4,53 |

Jesteśmy członkiem:           

Wyszukiwarka
Notes
Zgłoś ofertę
Kalkulator
zgłoś ofertę
Mieszkania
Domy
Działki
Lokale
Obiekty
Szczegóły oferty
Rodzaj oferty
mieszkanie ( sprzedaż )
Numer oferty
438590
Miejscowość
SZCZECIN, CENTRUM
Ulica
Marszałka Józefa Piłsudskiego
Cena
650 000 PLN kalkulator
Cena za mkw
5 078,13 PLN mkw
Powierzchnia
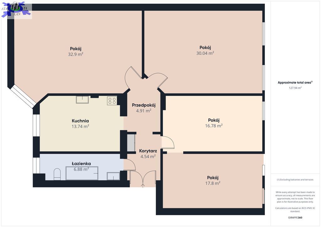
128.00 m2
Liczba pokoi
4
Piętro
2
Liczba pięter
4
Stan mieszkania
do kapitalnego remontu
Rok budowy
1930
Opis
Przestrzeń, klimat i ogromny potencjał. 128 m2 w sercu Szczecina



Na sprzedaż wyjątkowe mieszkanie o powierzchni 128 m2, położone na 2. piętrze zadbanej kamienicy z 1930 roku przy ul. Marszałka Józefa Piłsudskiego w Szczecinie. To świetna propozycja zarówno do zamieszkania, jak i jako inwestycja pod wynajem lub lokata kapitału.



Najważniejsze atuty

4 duże, ustawne pokoje z możliwością swobodnej aranżacjiWidna kuchnia z dużą ilością miejsca do przechowywaniaŁazienka z wannąFunkcjonalny przedpokój z miejscem na zabudowęBalkon - idealne na poranną kawę i odpoczynek

Wnętrze zachowało oryginalne elementy, które budują klimat kamienicy, m.in. piece kaflowe i węglowe. Mieszkanie wymaga remontu, co daje pełną swobodę w stworzeniu przestrzeni dokładnie pod własne potrzeby i gust - od klasyki po nowoczesne rozwiązania.



Lokalizacja

Świetnie skomunikowane centrum Szczecina. W pobliżu znajdziesz sklepy, szkoły, przedszkola i uczelnie wyższe. Dodatkowym plusem jest sąsiedztwo terenów zielonych, które pozwalają złapać oddech na co dzień.



Ta nieruchomość łączy duży metraż, charakter kamienicy i topową lokalizację - to rzadkie połączenie na rynku.



Serdecznie zapraszam na prezentację!


Dodatkowe informacje: balkon

Kontakt do agenta

Atalanta Nieruchomości
Marii Konopnickiej 32
71-132 Szczecin
tel.: 914875042
email: info@atalanta.szczecin.pl
fax: 914875031

Wyślij zapytanie

Imię i Nazwisko
Telefon
E-mail
Treść zapytania

Wyrażam zgodę na przetwarzanie moich danych osobowych przez firmę dla celów związanych z działalnością pośrednictwa w obrocie nieruchomościami, jednocześnie potwierdzam, iż zostałem poinformowany o tym, iż będę posiadać dostęp do treści swoich danych do ich edycji lub usunięcia.

Wyślij ofertę

E-mail
© 2026 Atalanta Nieruchomości. Wszystkie prawa zastrzeżone.