Kursy walut NBP: USD 3,98 | EUR 4,32 | CHF 4,53 |

Jesteśmy członkiem:           

Wyszukiwarka
Notes
Zgłoś ofertę
Kalkulator
zgłoś ofertę
Mieszkania
Domy
Działki
Lokale
Obiekty
Szczegóły oferty
Rodzaj oferty
lokal ( wynajem )
Numer oferty
438411
Miejscowość
STARGARD
Cena
6 000 PLN
Cena za mkw
60 PLN mkw
Powierzchnia
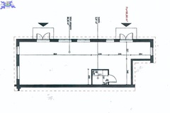
90.80 m2
Rok budowy
2021
Opis

Super miejsce na Twój interes w doskonałej lokalizacji!

Nowoczesny i przestronny lokal o pow. 90,8 m2 położony jest na parterze apartamentowca (Osiedle Centrum) z dwoma niezależnymi wejściami od strony ulicy Szczecińskiej.

Lokal nowocześnie wykończony idealnie się nadaję pod działalność usługową bądź handlową. W lokalu rekuperacja oraz system alarmowy.
Dodatkowo do lokalu przynależy miejsce parkingowe w garażu bezpośrednio przy lokalu oraz parking ogólnodostępny.

Ogrzewanie i ciepła woda z sieci miejskiej.

Preferowany najem długoterminowy, wymagana kaucja zabezpieczająca.

Jesteśmy wyłącznym przedstawicielem oferty, w celu uzyskania większej ilości informacji proszę o kontakt telefoniczny.




Kontakt do agenta

Atalanta Nieruchomości
Marii Konopnickiej 32
71-132 Szczecin
tel.: 914875042
email: info@atalanta.szczecin.pl
fax: 914875031

Wyślij zapytanie

Imię i Nazwisko
Telefon
E-mail
Treść zapytania

Wyrażam zgodę na przetwarzanie moich danych osobowych przez firmę dla celów związanych z działalnością pośrednictwa w obrocie nieruchomościami, jednocześnie potwierdzam, iż zostałem poinformowany o tym, iż będę posiadać dostęp do treści swoich danych do ich edycji lub usunięcia.

Wyślij ofertę

E-mail
© 2026 Atalanta Nieruchomości. Wszystkie prawa zastrzeżone.