Kursy walut NBP: USD 3,98 | EUR 4,32 | CHF 4,53 |

Jesteśmy członkiem:           

Wyszukiwarka
Notes
Zgłoś ofertę
Kalkulator
zgłoś ofertę
Mieszkania
Domy
Działki
Lokale
Obiekty
Szczegóły oferty
Rodzaj oferty
dom blizniak ( sprzedaż )
Numer oferty
438298
Miejscowość
SAPOWICE
Cena
639 000 PLN kalkulator
Cena za mkw
5 678,49 PLN mkw
Powierzchnia
112.53 m2
Pow. działki
300.00 m2
Liczba pokoi
4
Liczba pięter
1
Stan domu
do wykonczenia
Rok budowy
2026
Droga dojazdowa
asfaltowa
Opis
Sapowice Nowoczesny bliźniak 600 m od jeziora - Standard Premium

Zapraszamy do Sapowic - kameralnego osiedla w otulinie lasów, zaledwie 25 min od Poznania (S5). Oferujemy na sprzedaż dom o oryginalnej architekturze i podwyższonym standardzie wykonania, blisko natury i plaży.

Podstawowe dane
Powierzchnia domu ok. 112,53 m2 (salon z aneksem + 3 sypialnie, 2 łazienki).
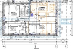
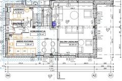
wypisz powierzchnie z tych zdjęcOto wypisane powierzchnie pomieszczeń widoczne na przesłanych rzutach (parter + piętro)
Parter (lokal 02 - wersja z aneksem kuchni)
Łazienka 5,39 m2
Wiatrołap 2,44 m2
Komunikacja 2,74 m2
Aneks kuchni 7,09 m2
Salon + jadalnia 36,59 m2

Piętro (lokal 02 - wersja z trzema pokojami)
Łazienka 12,93 m2
Pokój 1 9,03 m2
Pokój 2 9,35 m2
Pokój 3 17,21 m2
Komunikacja 8,91 m2

Powierzchnia działki ok.300 m2 (wyrównany humusem, z gotowym tarasem).

Wejście do domu od strony zachodniej, ogród zwrócony na południe i wschód

PODWYŻSZONY STANDARD DEWELOPERSKI

Ogrzewanie Wydajna Pompa Ciepła Panasonic (7kW) oraz ogrzewanie podłogowe na całej powierzchni (parter i piętro).

Topowa stolarka

Ogromne, przesuwne okno tarasowe typu HST w salonie.

Okna 3-szybowe w kolorze antracyt firmy Rehau.

Elektryczne żaluzje fasadowe zewnętrzne (na parterze).

Izolacja "pod dom pasywny" Ściany z cegły ceramicznej + 20 cm styropianu grafitowego (lambda 031). Między lokalami cegła akustyczna.

Prestiżowa elewacja Wykończenie holenderską płytką klinkierową (Elastolith) lub okładziną drewnopodobną.

Dach Dachówka płaska lakierowana, konstrukcja przygotowana pod fotowoltaikę

Otoczenie Ekologiczna kratownica na podjazdach (zamiast betonu), ogrodzenie ażurowe.

Media Prąd, woda, szambo 10m, przygotowanie pod światłowód.

Budynek oddany do użytkowania, wydanie od zaraz. Zapraszamy do kontaktu.


Dodatkowe informacje: garaż

Kontakt do agenta

Atalanta Nieruchomości
Marii Konopnickiej 32
71-132 Szczecin
tel.: 914875042
email: info@atalanta.szczecin.pl
fax: 914875031

Wyślij zapytanie

Imię i Nazwisko
Telefon
E-mail
Treść zapytania

Wyrażam zgodę na przetwarzanie moich danych osobowych przez firmę dla celów związanych z działalnością pośrednictwa w obrocie nieruchomościami, jednocześnie potwierdzam, iż zostałem poinformowany o tym, iż będę posiadać dostęp do treści swoich danych do ich edycji lub usunięcia.

Wyślij ofertę

E-mail
© 2026 Atalanta Nieruchomości. Wszystkie prawa zastrzeżone.