Kursy walut NBP: USD 3,98 | EUR 4,32 | CHF 4,53 |

Jesteśmy członkiem:           

Wyszukiwarka
Notes
Zgłoś ofertę
Kalkulator
zgłoś ofertę
Mieszkania
Domy
Działki
Lokale
Obiekty
Szczegóły oferty
Rodzaj oferty
mieszkanie ( sprzedaż )
Numer oferty
436698
Miejscowość
SZCZECIN, NIEBUSZEWO
Ulica
Elizy Orzeszkowej
Cena
439 000 PLN kalkulator
Cena za mkw
7 080,65 PLN mkw
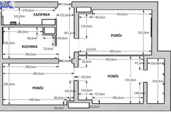
Powierzchnia
62.00 m2
Liczba pokoi
3
Piętro
2
Liczba pięter
4
Rok budowy
1935
Opis
Przedmiotem oferty jest mieszkanie 3 pokojowe (dwa pokoje przechodnie), położone na drugim piętrze w kamienicy na ul. Orzeszkowej. Budynek bez windy. Kuchnia oddzielna, w zabudowie, ze sprzętem. Salon z przejściem do sypialni. Druga sypialnia z loggią. Stan mieszkania dobry. Piony wod-kan i instalacja elektryczna wymienione 4 lata temu. Na podłogach panele, okna pcv, okna w logii drewniane starszego typu. Czynsz do wspólnoty 530 zł/m-c przy 10m3 wody. Ogrzewanie i ciepła woda z pieca gazowego (w sezonie grzewczym ok 550 zł/m-c). Do mieszkania przynależy piwnica o powierzchni 6,70m2. Prawo własności z udziałem w gruncie.

Dodatkowe informacje: piwnica, komórka

Kontakt do agenta

Atalanta Nieruchomości
Marii Konopnickiej 32
71-132 Szczecin
tel.: 914875042
email: info@atalanta.szczecin.pl
fax: 914875031

Wyślij zapytanie

Imię i Nazwisko
Telefon
E-mail
Treść zapytania

Wyrażam zgodę na przetwarzanie moich danych osobowych przez firmę dla celów związanych z działalnością pośrednictwa w obrocie nieruchomościami, jednocześnie potwierdzam, iż zostałem poinformowany o tym, iż będę posiadać dostęp do treści swoich danych do ich edycji lub usunięcia.

Wyślij ofertę

E-mail
© 2026 Atalanta Nieruchomości. Wszystkie prawa zastrzeżone.