Kursy walut NBP: USD 3,98 | EUR 4,32 | CHF 4,53 |

Jesteśmy członkiem:           

Wyszukiwarka
Notes
Zgłoś ofertę
Kalkulator
zgłoś ofertę
Mieszkania
Domy
Działki
Lokale
Obiekty
Szczegóły oferty
Rodzaj oferty
dom blizniak ( sprzedaż )
Numer oferty
438000
Miejscowość
LIPNIK
Cena
719 000 PLN kalkulator
Cena za mkw
5 679,3 PLN mkw
Powierzchnia
126.60 m2
Pow. działki
600.00 m2
Liczba pokoi
4
Stan domu
do wykonczenia
Rok budowy
2024
Opis
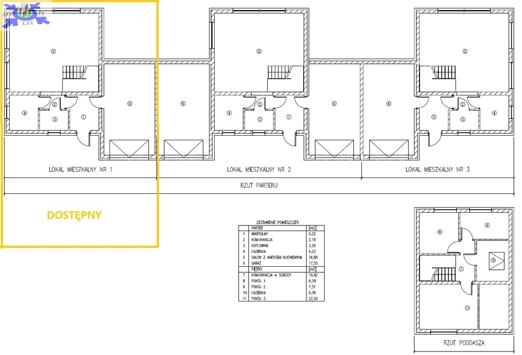
!!! OSTATNI DOSTĘPNY BLIŹNIAK W LIPNIKU!!!

Serdecznie zapraszam do zapoznania się z ofertą sprzedaży domu w zabudowie bliźniaczej, znajdujący się w miejscowości Lipnik.
Ofertą sprzedaży jest dom w zabudowie bliźniaczej, sprzedawany w stanie deweloperskim. Dom jest oddzielony od sąsiedniego domu garażem , co zapewnia większą niezależność.Na całej powierzchni użytkowej - ogrzewanie podłogowe.Ogrzewanie - z pompy ciepła.
Skrajny bliźniak z garażem o powierzchni całkowitej 126,6 m2 w skład której wchodzą

PARTER
- salon z aneksem kuchennym 34,88 m2
- łazienka 6,03 m2
- wiatrołap 6,32 m2
- komunikacja - 2,18m2
- kotłownia - 3,36 m2
GARAŻ - 17,55 m2

RAZEM 52,76 m2 + garaż 17,55 m2 =70,32 m2

PODDASZE
- pokój - 22,50 m2
- pokój - 7,81 m2
- pokój - 9,14 m2
- łazienka - 6,38m2
- komunikacja + schody - 10,42

RAZEM 56,25 m2

Powierzchnia działki wynosi 600 m2.

Niewątpliwym atutem są również piękne duże tarasowe okna o szerokości 4m!!!
Idealna lokalizacja w okolicy - szkoła podstawowa, przedszkole, Centrum handlowe Lipnik, Rossman, Netto i wiele innych. Szybki wyjazd do Szczecina i do centrum Stargardu.
W bliskiej odległości znajduje się również Jezioro Miedwie, Centrum Handlowe - Lipnik, Szkoła, Przedszkole, szybki dojazd do Stargardu i do Szczecina.

Możliwość wykończenia domu pod klucz!
Kupujący nie płaci 2% PCC!

Serdecznie polecam - nie czekaj , zarezerwuj już dziś i ciesz się pięknym domem w bardzo dobrej lokalizacji!

Zapraszam serdecznie!






Dodatkowe informacje: garaż

Kontakt do agenta

Atalanta Nieruchomości
Marii Konopnickiej 32
71-132 Szczecin
tel.: 914875042
email: info@atalanta.szczecin.pl
fax: 914875031

Wyślij zapytanie

Imię i Nazwisko
Telefon
E-mail
Treść zapytania

Wyrażam zgodę na przetwarzanie moich danych osobowych przez firmę dla celów związanych z działalnością pośrednictwa w obrocie nieruchomościami, jednocześnie potwierdzam, iż zostałem poinformowany o tym, iż będę posiadać dostęp do treści swoich danych do ich edycji lub usunięcia.

Wyślij ofertę

E-mail
© 2026 Atalanta Nieruchomości. Wszystkie prawa zastrzeżone.