Kursy walut NBP: USD 3,98 | EUR 4,32 | CHF 4,53 |

Jesteśmy członkiem:           

Wyszukiwarka
Notes
Zgłoś ofertę
Kalkulator
zgłoś ofertę
Mieszkania
Domy
Działki
Lokale
Obiekty
Szczegóły oferty
Rodzaj oferty
mieszkanie ( sprzedaż )
Numer oferty
437791
Miejscowość
SZCZECIN, OS. ARKOŃSKIE
Cena
595 000 PLN kalkulator
Cena za mkw
9 535,26 PLN mkw
Powierzchnia
62.40 m2
Liczba pokoi
4
Piętro
1
Liczba pięter
4
Stan mieszkania
do remontu
Rok budowy
1975
Opis
Polecam na sprzedaż słoneczne, czteropokojowe mieszkanie z balkonem położone na osiedlu Arkońskim. Lokal położony na 1 piętrze, niskiego budynku.
Spółdzielcze - własnościowe możliwość zakupu dla klientów spoza UE.
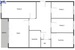
Na powierzchnię 62,4 m2 składają się
-przestronny przedpokój
-salon z wyjściem na balkonem
-3 pokoje
- łazienka
-osobne WC.
Na podłogach parkiet sosnowy w dobrym stanie. W salonie i w sypialni na suficie ozdobna sztukateria.
Ogrzewanie oraz ciepła woda z sieci miejskiej. Okna PCV.
Do mieszkania przynależą 2 piwnice .

Mieszkanie położone w zielonej okolicy, w pobliżu liczne sklepy, punkty handlowo-usługowe, szkoła, przedszkole, przychodnia, apteka oraz przystanki komunikacji miejskiej.
Zapraszam serdecznie na prezentację.

Dodatkowe informacje: umeblowane, balkon, piwnica, garaż, komórka

Kontakt do agenta

Atalanta Nieruchomości
Marii Konopnickiej 32
71-132 Szczecin
tel.: 914875042
email: info@atalanta.szczecin.pl
fax: 914875031

Wyślij zapytanie

Imię i Nazwisko
Telefon
E-mail
Treść zapytania

Wyrażam zgodę na przetwarzanie moich danych osobowych przez firmę dla celów związanych z działalnością pośrednictwa w obrocie nieruchomościami, jednocześnie potwierdzam, iż zostałem poinformowany o tym, iż będę posiadać dostęp do treści swoich danych do ich edycji lub usunięcia.

Wyślij ofertę

E-mail
© 2025 Atalanta Nieruchomości. Wszystkie prawa zastrzeżone.