Kursy walut NBP: USD 3,98 | EUR 4,32 | CHF 4,53 |

Jesteśmy członkiem:           

Wyszukiwarka
Notes
Zgłoś ofertę
Kalkulator
zgłoś ofertę
Mieszkania
Domy
Działki
Lokale
Obiekty
Szczegóły oferty
Rodzaj oferty
mieszkanie ( sprzedaż )
Numer oferty
437774
Miejscowość
BEZRZECZE
Cena
645 000 PLN kalkulator
Cena za mkw
7 865,85 PLN mkw
Powierzchnia
82.00 m2
Liczba pokoi
3
Piętro
3
Liczba pięter
3
Rodzaj kuchni
otwarta
Rok budowy
1990
Opis
Na sprzedaż oferuję wyjątkowe, dwupoziomowe mieszkanie zlokalizowane przy ul. Koralowej w Bezrzeczu - jednej z najbardziej pożądanych, spokojnych i zielonych części aglomeracji szczecińskiej.

Budynek i układ mieszkania
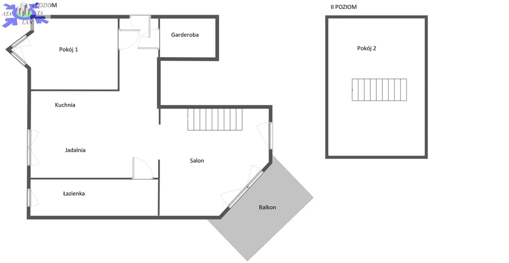
Nieruchomość znajduje się w kameralnym, 3-piętrowym budynku z lat 90., w którym na każdym piętrze mieszczą się jedynie trzy mieszkania. Lokal usytuowany jest na ostatnim, trzecim piętrze, co gwarantuje ciszę i prywatność - brak sąsiadów nad głową to duży komfort na co dzień.

Mieszkanie ma powierzchnię 82 m2 (realnie większą dzięki skosom) i wyróżnia się bardzo funkcjonalnym oraz nietypowym układem, który warto zobaczyć na żywo.

I poziom

kuchnia z wygodną jadalnią

salon z wyjściem na balkon i schodami na 2 poziom

sypialnia

łazienka z WC

przedpokój

praktyczne pomieszczenie gospodarcze (ok. 1,5 m2)

II poziom (ze skosami)

duża, wysoka przestrzeń open space - obecnie jako strefa dzieci, z możliwością wydzielenia dwóch dodatkowych pokoi, co daje łącznie nawet 4 pokoje. Ta część mieszkania nadaje wnętrzu charakter domu jednorodzinnego.

Standard wykończenia
Mieszkanie w 2024 r. przeszło odświeżenie - zostało odmalowane i nie wymaga dodatkowych nakładów finansowych. Ogrzewanie pochodzi z sieci miejskiej(lokalna kotłownia), a w lokalu nie ma gazu(w budynku jest).

Dodatkowe atuty

duży balkon z pięknym widokiem na las i okoliczną zabudowę domków jednorodzinnych.

duża piwnica 11,3 m2 (ujęta w Księdze Wieczystej)

czynsz ok. 1200 zł (w tym zaliczki na wodę i ogrzewanie)

To mieszkanie to doskonała propozycja dla osób poszukujących przestrzeni, oryginalnego układu i klimatu, którego nie znajdziemy w standardowych lokalach.
A okolica charakteryzuje się niską zabudową, licznymi terenami rekreacyjnymi i stale rozwijającą infrastrukturą handlowo-usługową, dzięki czemu Bezrzecze staje się miejscem wygodnym i niemal samowystarczalnym.
Dobre połączenia komunikacyjne oraz sieć ścieżek rowerowych zapewniają szybki dojazd zarówno do centrum, jak i okolicznych miejscowości.

Zapraszam do obejrzenia - to nieruchomość, której charakter najlepiej oddaje osobista wizyta.

Dodatkowe informacje: umeblowane, balkon, piwnica, komórka

Kontakt do agenta

Atalanta Nieruchomości
Marii Konopnickiej 32
71-132 Szczecin
tel.: 914875042
email: info@atalanta.szczecin.pl
fax: 914875031

Wyślij zapytanie

Imię i Nazwisko
Telefon
E-mail
Treść zapytania

Wyrażam zgodę na przetwarzanie moich danych osobowych przez firmę dla celów związanych z działalnością pośrednictwa w obrocie nieruchomościami, jednocześnie potwierdzam, iż zostałem poinformowany o tym, iż będę posiadać dostęp do treści swoich danych do ich edycji lub usunięcia.

Wyślij ofertę

E-mail
© 2025 Atalanta Nieruchomości. Wszystkie prawa zastrzeżone.