Kursy walut NBP: USD 3,98 | EUR 4,32 | CHF 4,53 |

Jesteśmy członkiem:           

Wyszukiwarka
Notes
Zgłoś ofertę
Kalkulator
zgłoś ofertę
Mieszkania
Domy
Działki
Lokale
Obiekty
Szczegóły oferty
Rodzaj oferty
lokal ( wynajem )
Numer oferty
437658
Miejscowość
SZCZECIN, CENTRUM
Cena
23 800 PLN
Cena za mkw
70 PLN mkw
Powierzchnia
340.00 m2
Liczba pokoi
9
Piętro
5
Liczba pięter
12
Rok budowy
1992
Opis
Do wynajęcia komfortowa powierzchnia biurowa położona na piątym piętrze nowoczesnego budynku biurowo - usługowego klasy A, zlokalizowanego w Centrum Szczecina.


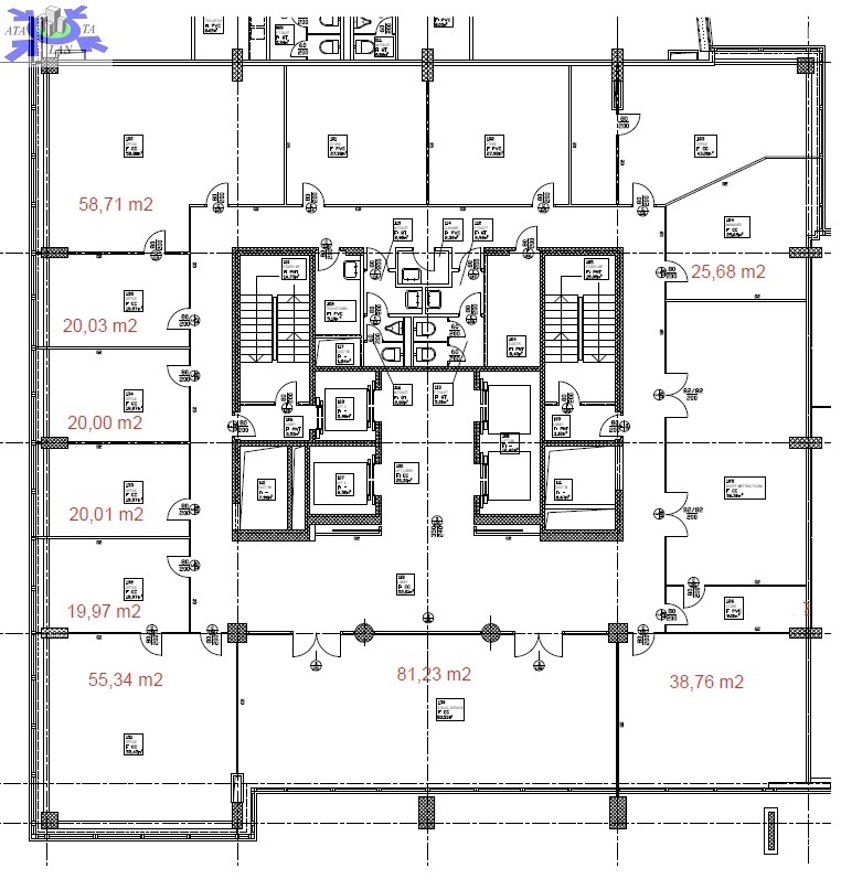
Na powierzchnię 340 m2 składa się 8 pokoi biurowych w systemie gabinetowym o powierzchniach od 20 do 58 m2 praz sala konferencyjna o pow. 80 m2

Do lokalu doprowadzona jest instalacja klimatyzacji, elektryczna, komputerowa (światłowodowa) oraz telefoniczna, zainstalowane są czujniki dymu i tryskacze.

Na podłodze położona jest wykładzina, ściany i sufity gładzone i malowane, oświetlenie rastrowe. Pomieszczenia świeżo malowane oraz nowa wykładzina podłogowa.

Do wspólnego użytku - jedynie z jednym najemcą - są pomieszczenie socjalne wraz z aneksem kuchennym oraz węzły sanitarne (świeżo po remoncie).

Budynek wyposażony w eleganckie korytarze i klatki schodowe, nowoczesne windy, recepcję i całodobowa ochronę wraz z systemem monitoringu i kontroli dostępu.

Budynek cechuje najwyższa jakość wykończenia wnętrz, elastyczna aranżacja przestrzeni oraz wysokiej klasy urządzenia i systemy gwarantujące komfort pracy. Budynek posiada wszelkie niezbędne udogodnienia, które są obecnie standardem na rynku nieruchomości komercyjnych. Dla użytkowników budynku dostępny jest parking podziemny (możliwość wynajmu miejsc parkingowych za dodatkową opłatą). Do oferowanej powierzchni proponowane są 4 miejsca postojowe. Istnieje możliwość zwiększenia tej liczby w trakcie negocjacji.


Dodatkowe informacje: winda, parking

Kontakt do agenta

Atalanta Nieruchomości
Marii Konopnickiej 32
71-132 Szczecin
tel.: 914875042
email: info@atalanta.szczecin.pl
fax: 914875031

Wyślij zapytanie

Imię i Nazwisko
Telefon
E-mail
Treść zapytania

Wyrażam zgodę na przetwarzanie moich danych osobowych przez firmę dla celów związanych z działalnością pośrednictwa w obrocie nieruchomościami, jednocześnie potwierdzam, iż zostałem poinformowany o tym, iż będę posiadać dostęp do treści swoich danych do ich edycji lub usunięcia.

Wyślij ofertę

E-mail
© 2025 Atalanta Nieruchomości. Wszystkie prawa zastrzeżone.