Opis
JUŻ DZISIAJ UMÓW SIĘ NA PREZENTACJĘ!!!
Przedmiotem sprzedaży jest LOKAL MIESZKALNY w stanie do wykończenia, wybudowany w technologii tradycyjnej według indywidualnego projektu.
Nieruchomość położona w GOLENIOWIE, na cichym i spokojnym osiedlu domków jednorodzinnych.
Mieszkanie znajduje się w budynku czterolokalowym, położony na działce o pow. 338 m2, częściowo ogrodzonej. Dojazd drogą gminną gruntową.
Przed budynkiem wykonana kostka polbrukowa.
W ofercie także lokal na parterze z ogródkiem.
Media - prąd, woda i kanalizacja z sieci miejskiej.
Ogrzewanie - gaz,
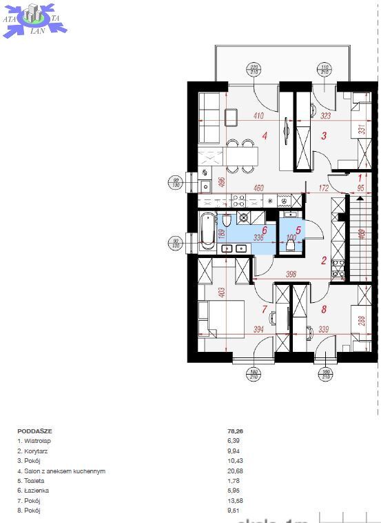
Mieszkanie o pow. użytkowa 78,26 m2, na którą składa się
- salon z aneksem kuchennym - 20,68 m2 (wyjście na taras),
- pokoje - 10,43 m2 13,58 m2 9,51 m2
- łazienka - 5,95 m2,
- toaleta - 1,78 m2,
- hol - 9,94 m2,
- wiatrołap - 6,39 m2
KONSTRUKCJA
- Ściany konstrukcyjne - bloczki beton komórkowy 24 cm, ściany wewnętrzne - bloczki beton komórkowy 12 cm,
- Strop - betonowy,
- Ocieplenie ścian zewnętrznych - styropian 20 cm,
- Pokrycie dachu - dachówka.
STANDARD WYKOŃCZENIA
- drzwi wejściowe,
- okna PCV 3-szybowe + okno tarasowe,
- instalacja - elektryczna, wodna, kanalizacyjna, gazowa, RTV,
- system ogrzewania podłogowego w całym domu,
- ocieplenie dachu - wełna.
W pokojach ściany gładzone malowane, podłogi posadzki. Miejsca postojowe na podjeździe.
Cena zawiera podatek VAT - 8%. Kupujący zwolniony z podatku 2% od czynności cywilnoprawnych.
Koszty związane z nabyciem nieruchomości
- opłaty u notariusza - taksa notarialna, opłaty sądowe, opłata za wypisy aktu,
- wynagrodzenie biura nieruchomości za usługę pośrednictwa w zakupie.
ZAPRASZAMY NA PREZENTACJE i DO SKŁADANIA OFERT ZAKUPU !!!