Kursy walut NBP: USD 3,98 | EUR 4,32 | CHF 4,53 |

Jesteśmy członkiem:           

Wyszukiwarka
Notes
Zgłoś ofertę
Kalkulator
zgłoś ofertę
Mieszkania
Domy
Działki
Lokale
Obiekty
Szczegóły oferty
Rodzaj oferty
mieszkanie ( sprzedaż )
Numer oferty
437286
Miejscowość
SZCZECIN, CENTRUM
Ulica
Księcia Bogusława X
Cena
529 000 PLN kalkulator
Cena za mkw
9 981,13 PLN mkw
Powierzchnia
53.00 m2
Liczba pokoi
2
Piętro
1
Liczba pięter
4
Rok budowy
1920
Opis
Perełka lokalizacyjna - zadbane mieszkanie w ocieplonej kamienicy z piękną odremontowaną elewacją w samym centrum Szczecina.
Wokół historyczna zabudowa śródmiejska - Deptak Bogusława, Plac Zgody, ciąg pieszo-handlowy przy al. Wojska Polskiego. Blisko do CH KASKADA.

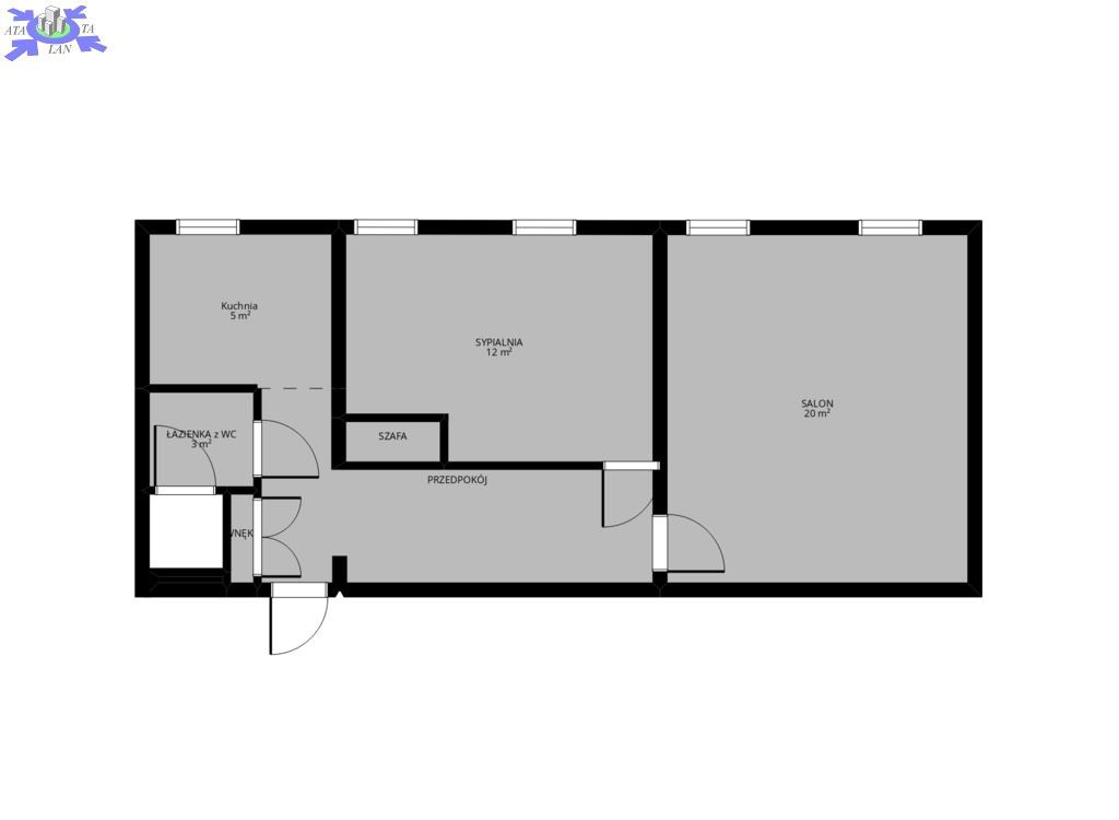
Mieszkanie składa się z
-dwóch dużych pokoi o powierzchniach ok. 20 oraz 12m kw. z dużymi ładnie doświatlającymi wnętrza oknami PCV
-oddzielnej kuchni z zabudową, ze sprzętem AGD w tym lodówko-zamrażarką, piekarnikiem, kuchenką gazową i pralką, pow. kuchni ok. 5m kw, duże okno PCV
-łazienki razem z WC, z wygodną kabiną przysznicową
-przedpokoju z dwiema szafami wnękowymi.
Całość o pow. 52,87 m kw., dobrze utrzymana, z widocznym umeblowaniem i wyposażeniem.
Solidne okna PCV z widokami na zadbaną zabudową oraz na piękne drzewa.Przytulne pomieszczenia z dobrą energią. Schemat pomieszczeń pokazano na rysunku.

Ogrzewanie i ciepła woda z pieca gazowego 2-obiegowego.Opłaty do zarządcy przy pustym mieszkaniu wynoszą obecnie 296zł.

Wokół sporo miejsc postojowych w płatnej strefie parkowania, niedaleko parking strzeżony, CH KUPIEC, restauracje, sklepy z odzieżą znanych marek itp.
Polecamy z uwagi na wyborną lokalizację, olbrzymi potencjał do wykorzystania zarówno na własne cele mieszkalne, wynajem lub prowadzenie biurowej działalności gospodarczej.

Takie perełki lokalizacyjne nie trafiają się często !
Zadzwoń już dziś i umów się na prezentację !
Oferta na wyłączność - klucze w biurze.




Kontakt do agenta

Atalanta Nieruchomości
Marii Konopnickiej 32
71-132 Szczecin
tel.: 914875042
email: info@atalanta.szczecin.pl
fax: 914875031

Wyślij zapytanie

Imię i Nazwisko
Telefon
E-mail
Treść zapytania

Wyrażam zgodę na przetwarzanie moich danych osobowych przez firmę dla celów związanych z działalnością pośrednictwa w obrocie nieruchomościami, jednocześnie potwierdzam, iż zostałem poinformowany o tym, iż będę posiadać dostęp do treści swoich danych do ich edycji lub usunięcia.

Wyślij ofertę

E-mail
© 2025 Atalanta Nieruchomości. Wszystkie prawa zastrzeżone.