Kursy walut NBP: USD 3,98 | EUR 4,32 | CHF 4,53 |

Jesteśmy członkiem:           

Wyszukiwarka
Notes
Zgłoś ofertę
Kalkulator
zgłoś ofertę
Mieszkania
Domy
Działki
Lokale
Obiekty
Szczegóły oferty
Rodzaj oferty
dom blizniak ( sprzedaż )
Numer oferty
437267
Miejscowość
REDLICA
Ulica
Zielona
Cena
915 000 PLN kalkulator
Cena za mkw
7 534,58 PLN mkw
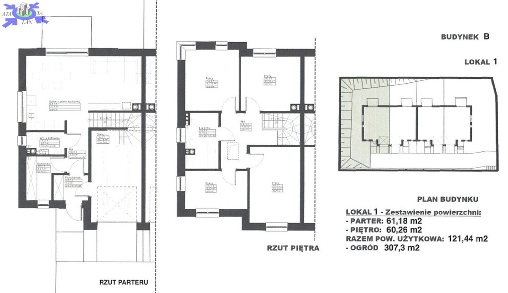
Powierzchnia
121.44 m2
Pow. działki
307.30 m2
Liczba pokoi
5
Liczba pięter
1
Rodzaj kuchni
otwarta
Stan domu
idealny
Rok budowy
2024
Droga dojazdowa
utwardzona
Opis
Dom na sprzedaż w zabudowie bliźniaczej w stanie deweloperskim, z garażem i ogródkiem, położony przy ulicy Zielonej w miejscowości Redlica pomiędzy Wołczkowem a Dobrą w bliskiej odległości od drogi asfaltowej (droga dojazdowa z dobrze ułożonych płyt betonowych 1km, dobrze oświetlona).

Dom
- pow. użytkowa 121,44mkw
- orientacja na wschód i południe (dużo światła)
- wys. pomieszczeń na parterze 290cm
- ściany pustak ceramiczny Porotherm
- strop i ławy żelbet
- dach konstrukcja drewniana, dachówka ceramiczna
- ocieplenie budynku - styropian 20 cm
- ocieplenie stropu nad piętrem - wełna mineralna 25 cm
- izolacja przeciwwilgociowa i przeciwwodna izolacja podłogi - styropian 20 cm
- sufit na piętrze w technologii kartonowo - gipsowej GK
- drzwi wejściowe metalowe antywłamaniowe
- okna PCV trzyszybowe parapety zewnętrzne metalowe
- obróbka blacharska - blacha ocynkowana
- wykończenie ścian - tynki gipsowe
- ogrzewanie podłogowe w całym domu z piecem gazowym firmy De Dietrich z zamkniętą komorą spalania
- schody wylewane betonowe
- instalacja elektryczna 3-fazowa
- gotowa instalacja alarmowa antywłamaniowa

Parter 61,18mkw
- garaż z bramą wjazdową na pilota
- łazienka (z piecem gazowym)
- salon z aneksem i wyjściem na ogródek podłączenie pod kominek - komin z wkładem ceramicznym drzwi tarasowe duże rozsuwane
- wiatrołap
- garderoba

Piętro 60,62mkw
- duża łazienka z miejscem na wannę i prysznic
- 4 sypialnie
- hol

Dodatkowo duże poddasze, na które prowadzą opuszczane schody.

Działka
- ogródek o powierzchni 307,3mkw
- dojazd do domu i taras - kostka z polbruku
- teren ogrodzony z bramą wjazdową na pilota
- możliwość wyznaczenia dodatkowego prywatnego miejsca postojowego plus jedno miejsce istniejące vis a vis garażu nie kolidujące z sąsiadami

Okolica
Dom położony jest w cichej, malowniczej Redlicy - zaledwie 3km od Dobrej Szczecińskiej, 3km od Wołczkowa, 4km od Bezrzecza i 7km od przejścia granicznego w Lubieszynie. W okolicy domy jednorodzinne oraz w zabudowie bliźniaczej. Najbliższe sklepy to Dino i Netto, do których jest zaledwie 3km. Dzięki centralnemu umiejscowieniu w pobliżu znajdują się liczne przedszkola i szkoły, a także restauracje, punkty handlowe, usługowe i gastronomiczne, paczkomaty itp. Miejsce idealne dla rodziny, która szuka swojego miejsca do życia w otoczeniu zieleni z dostępem do miejskiej infrastruktury w okolicy, która szybko się rozwija.


Dodatkowe informacje: garaż

Kontakt do agenta

Atalanta Nieruchomości
Marii Konopnickiej 32
71-132 Szczecin
tel.: 914875042
email: info@atalanta.szczecin.pl
fax: 914875031

Wyślij zapytanie

Imię i Nazwisko
Telefon
E-mail
Treść zapytania

Wyrażam zgodę na przetwarzanie moich danych osobowych przez firmę dla celów związanych z działalnością pośrednictwa w obrocie nieruchomościami, jednocześnie potwierdzam, iż zostałem poinformowany o tym, iż będę posiadać dostęp do treści swoich danych do ich edycji lub usunięcia.

Wyślij ofertę

E-mail
© 2025 Atalanta Nieruchomości. Wszystkie prawa zastrzeżone.