Kursy walut NBP: USD 3,98 | EUR 4,32 | CHF 4,53 |

Jesteśmy członkiem:           

Wyszukiwarka
Notes
Zgłoś ofertę
Kalkulator
zgłoś ofertę
Mieszkania
Domy
Działki
Lokale
Obiekty
Szczegóły oferty
Rodzaj oferty
lokal biurowy ( sprzedaż )
Numer oferty
437242
Miejscowość
SZCZECIN, GUMIEŃCE
Cena
520 000 PLN kalkulator
Cena za mkw
8 427,88 PLN mkw
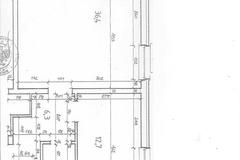
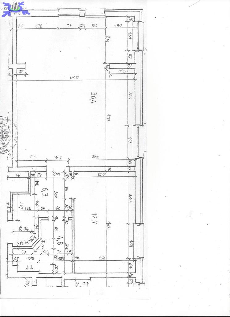
Powierzchnia
61.70 m2
Liczba pokoi
2
Liczba pięter
3
Rok budowy
2001
Opis
Podana cena jest ceną netto należy doliczyć 8% podatek VAT (kupujący przy zakupie nie płaci 2% podatku pcc)

Lokal o powierzchni 61,70 m2 położony na "wyższym" parterze, budynku (2001 rok), usytuowanego w dzielnicy Gumieńce w Szczecinie.
Przed budynkiem znajduje się ogólnodostępny parking. Wejście do lokalu z klatki schodowej po paru schodkach.
Lokal składa się z dwóch pomieszczeń (o pow. ok. 36 m2 i ok. 13 m2), przedpokoju i łazienki z wydzielonym wc. W chwili obecnej brak kuchni. Ale istnieje możliwość zrobienia "aneksu kuchennego" w największym pomieszczeniu lub osobnego pomieszczenia socjalnego w mniejszym pomieszczeniu (13 m2)
Wszystkie okna drewniane, na podłodze panele, w łazience i wc - glazura i terakota.
Czynsz należny zarządcy (uwzględniający śladową zaliczkę na wodę ciepłą i zimną, wywóz śmieci oraz ogrzewanie, i fundusz remontowy.) - ok. 695 PLN
Do lokalu przynależy piwnica o pow. 12,81 m2
Lokal idealny na działalność biurową, lub pod wynajem, ale także (po drobnych przeróbkach) doskonale sprawdzi się jako lokal mieszkalny.




Kontakt do agenta

Atalanta Nieruchomości
Marii Konopnickiej 32
71-132 Szczecin
tel.: 914875042
email: info@atalanta.szczecin.pl
fax: 914875031

Wyślij zapytanie

Imię i Nazwisko
Telefon
E-mail
Treść zapytania

Wyrażam zgodę na przetwarzanie moich danych osobowych przez firmę dla celów związanych z działalnością pośrednictwa w obrocie nieruchomościami, jednocześnie potwierdzam, iż zostałem poinformowany o tym, iż będę posiadać dostęp do treści swoich danych do ich edycji lub usunięcia.

Wyślij ofertę

E-mail
© 2025 Atalanta Nieruchomości. Wszystkie prawa zastrzeżone.