Kursy walut NBP: USD 3,98 | EUR 4,32 | CHF 4,53 |

Jesteśmy członkiem:           

Wyszukiwarka
Notes
Zgłoś ofertę
Kalkulator
zgłoś ofertę
Mieszkania
Domy
Działki
Lokale
Obiekty
Szczegóły oferty
Rodzaj oferty
mieszkanie ( sprzedaż )
Numer oferty
437241
Miejscowość
SZCZECIN, GUMIEŃCE
Ulica
Leopolda Okulickiego
Cena
562 000 PLN kalkulator
Cena za mkw
9 108,59 PLN mkw
Powierzchnia
61.70 m2
Liczba pokoi
1
Liczba pięter
3
Rodzaj kuchni
aneks
Stan mieszkania
do remontu
Rok budowy
2001
Opis

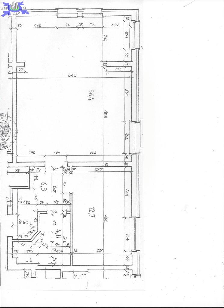
Mieszkanie o powierzchni 61,70 m2 położone na "wyższym" parterze, budynku (2001 rok) usytuowanego w dzielnicy Gumieńce w Szczecinie.
Przed budynkiem znajduje się ogólnodostępny parking. Wejście do mieszkania z klatki schodowej po paru schodkach.
Mieszkanie było użytkowane jako lokal biurowy, z pomieszczenia w którym miała być kuchnia zrobiono drugi pokój. Tak więc obecnie brak typowej kuchni, ale istnieje możliwość przywrócenia pierwotnego układu gdyż zostały zachowane wszystkie przyłącza
Mieszkanie składa się z dwóch pomieszczeń / pokoi o pow. ok. 36 m2 i ok.12 m2, (gdzie pierwotnie miała być kuchnia), przedpokoju oraz łazienki z wydzielonym wc.
Ściany tapetowane i malowane, na podłodze panele, wykładzina dywanowa oraz terakota. Okna drewniane.
Czynsz należny zarządcy (uwzględniający śladowe zaliczki na wodę ciepłą i zimną i wywóz śmieci, ogrzewanie, wywóz śmieci oraz fundusz remontowy) - ok. 695,- PLN
Do lokalu przynależy piwnica o pow. 12,81 m2
Lokal idealny na działalność biurową, lub pod wynajem, ale także(po drobnych przeróbkach) doskonale sprawdzi się jako lokal mieszkalny



Dodatkowe informacje: piwnica

Kontakt do agenta

Atalanta Nieruchomości
Marii Konopnickiej 32
71-132 Szczecin
tel.: 914875042
email: info@atalanta.szczecin.pl
fax: 914875031

Wyślij zapytanie

Imię i Nazwisko
Telefon
E-mail
Treść zapytania

Wyrażam zgodę na przetwarzanie moich danych osobowych przez firmę dla celów związanych z działalnością pośrednictwa w obrocie nieruchomościami, jednocześnie potwierdzam, iż zostałem poinformowany o tym, iż będę posiadać dostęp do treści swoich danych do ich edycji lub usunięcia.

Wyślij ofertę

E-mail
© 2025 Atalanta Nieruchomości. Wszystkie prawa zastrzeżone.