Kursy walut NBP: USD 3,98 | EUR 4,32 | CHF 4,53 |

Jesteśmy członkiem:           

Wyszukiwarka
Notes
Zgłoś ofertę
Kalkulator
zgłoś ofertę
Mieszkania
Domy
Działki
Lokale
Obiekty
Szczegóły oferty
Rodzaj oferty
działka budowlana ( sprzedaż )
Numer oferty
436832
Miejscowość
SZCZECIN, PODJUCHY
Cena
230 000 PLN kalkulator
Cena za mkw
431,52 PLN mkw
Powierzchnia
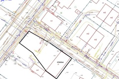
533.00 m2
Droga dojazdowa
asfaltowa
Opis
UWAGA!! obniżka ceny o 100 000 zł !!
NOWA CENA!!

Gotowa do budowy działka o powierzchni 533 m2 z pełnym uzbrojeniem.

Na sprzedaż, w pełni uzbrojona działka budowlana o powierzchni 533 m2 w Podjuch w Szczecinie, zlokalizowana bezpośrednio przy głównej, asfaltowej ulicy Metalowej.

To idealna okazja dla inwestora lub osoby szukającej gotowego gruntu pod budowę domu w lokalizacji z natychmiastowym dostępem do wszelkich udogodnień.

Atuty
1. Kompletne uzbrojenie i status budowlany
Zapomnij o kosztownym i długotrwałym dociąganiu mediów!
Działka posiada podłączenie do wszystkich 4 kluczowych mediów miejskich, które są już na jej terenie
Prąd Gaz Kanalizacja miejska Woda miejska Dodatkowo, na działce wcześniej stał dom (został rozebrany), co oznacza potwierdzony status budowlany terenu.

2. Wyróżniający potencjał adaptacyjny
Na posesji znajduje się budynek gospodarczy - stodoła - z zachowaną, zdrową poniemiecką więźbą dachową. Daje to unikalną możliwość adaptacji na ciekawy, loftowy budynek mieszkalny, garaż lub zaplecze, albo też łatwą rozbiórkę pod nową inwestycję.

3. Doskonała lokalizacja i pełna Infrastruktura miejska
Lokalizacja przy głównej drodze zapewnia szybki dostęp do centrum i autostrady A6. Dodatkowo Szczecińska Kolej Metropolitalna (SKM) Przystanek SKM w Podjuchach jest w pełni gotowy do obsługi pasażerów, a w pobliżu znajdują się Punkty Park&Ride i Bike&Ride. Pełna Infrastruktura Miejska Sklepy, szkoły, placówki medyczne - wszystko, co niezbędne jest w zasięgu ręki. Szybka Komunikacja W bezpośrednim sąsiedztwie działki znajduje się przystanek linii autobusowej miejskiej, gwarantujący komfortowy i szybki dojazd w każdą część Szczecina. Sąsiedztwo Niska zabudowa jedno- i wielorodzinna zapewnia kameralny i spokojny charakter okolicy.
Perspektywy Inwestycyjne
Teren elementarny oznaczony w Studium jako mieszkaniowy. Trwa opracowanie projektu Miejscowego Planu Zagospodarowania Przestrzennego, co wkrótce ostatecznie ureguluje i ułatwi proces inwestycyjny.

Nie przegap tej rzadkiej szansy na grunt gotowy do rozpoczęcia inwestycji w Podjuchach!
Zadzwoń po więcej informacji!


Dodatkowe informacje: media - prąd, media - gaz, media - woda

Kontakt do agenta

Atalanta Nieruchomości
Marii Konopnickiej 32
71-132 Szczecin
tel.: 914875042
email: info@atalanta.szczecin.pl
fax: 914875031

Wyślij zapytanie

Imię i Nazwisko
Telefon
E-mail
Treść zapytania

Wyrażam zgodę na przetwarzanie moich danych osobowych przez firmę dla celów związanych z działalnością pośrednictwa w obrocie nieruchomościami, jednocześnie potwierdzam, iż zostałem poinformowany o tym, iż będę posiadać dostęp do treści swoich danych do ich edycji lub usunięcia.

Wyślij ofertę

E-mail
© 2025 Atalanta Nieruchomości. Wszystkie prawa zastrzeżone.