Kursy walut NBP: USD 3,98 | EUR 4,32 | CHF 4,53 |

Jesteśmy członkiem:           

Wyszukiwarka
Notes
Zgłoś ofertę
Kalkulator
zgłoś ofertę
Mieszkania
Domy
Działki
Lokale
Obiekty
Szczegóły oferty
Rodzaj oferty
lokal ( wynajem )
Numer oferty
436812
Miejscowość
STARGARD
Ulica
Aleja Gryfa
Cena
1 179 PLN
Cena za mkw
25 PLN mkw
Powierzchnia
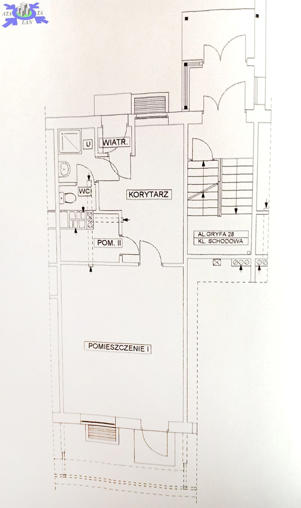
47.15 m2
Liczba pięter
4
Rok budowy
1988
Opis
Do wynajęcia lokal usługowy w Stargardzie - idealne miejsce na Twój biznes!

Oferujemy do wynajęcia lokal usługowy zlokalizowany przy Alei Gryfa w Stargardzie, w rejonie, gdzie znajduje się już wiele innych lokali usługowych, co zapewnia duży ruch pieszy i samochodowy. To doskonała okazja, aby rozwinąć działalność w jednym z najatrakcyjniejszych miejsc miasta.

Charakterystyka lokalu

Powierzchnia 47.15 m2

Pomieszczenia sala sprzedażowa, korytarz, WC, pomieszczenie socjalne

Dodatkowe atuty

Drugie wejście od tyłu budynku, co ułatwia zatowarowanie i nie zakłóca działalności

Możliwość parkowania przy tylnym wejściu

Miejskie ogrzewanie

Nowe okna i drzwi wejściowe

Koszty wynajmu

Cena 25 zł/m2 plus vat
Dodatkowo w czynszu zaliczki na media prąd, woda, ogrzewanie, wywóz śmieci

Całkowity koszt miesięczny (czynsz brutto plus zaliczki na media) 1900 zł brutto

Lokal idealny dla sklepów, usług, biur czy innych działalności wymagających widoczności oraz łatwego dostępu. Wysoki standard, dobra lokalizacja oraz duży ruch w okolicy sprawiają, że jest to miejsce, które pozwoli Ci rozwinąć Twój biznes.

Zainteresowanych prosimy o kontakt. Zapraszam do obejrzenia lokalu!


Kontakt do agenta

Atalanta Nieruchomości
Marii Konopnickiej 32
71-132 Szczecin
tel.: 914875042
email: info@atalanta.szczecin.pl
fax: 914875031

Wyślij zapytanie

Imię i Nazwisko
Telefon
E-mail
Treść zapytania

Wyrażam zgodę na przetwarzanie moich danych osobowych przez firmę dla celów związanych z działalnością pośrednictwa w obrocie nieruchomościami, jednocześnie potwierdzam, iż zostałem poinformowany o tym, iż będę posiadać dostęp do treści swoich danych do ich edycji lub usunięcia.

Wyślij ofertę

E-mail
© 2025 Atalanta Nieruchomości. Wszystkie prawa zastrzeżone.