Kursy walut NBP: USD 3,98 | EUR 4,32 | CHF 4,53 |

Jesteśmy członkiem:           

Wyszukiwarka
Notes
Zgłoś ofertę
Kalkulator
zgłoś ofertę
Mieszkania
Domy
Działki
Lokale
Obiekty
Szczegóły oferty
Rodzaj oferty
mieszkanie ( sprzedaż )
Numer oferty
408753
Miejscowość
GOLENIÓW
Ulica
Fryderyka Chopina
Cena
539 000 PLN kalkulator
Cena za mkw
8 241,59 PLN mkw
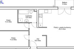
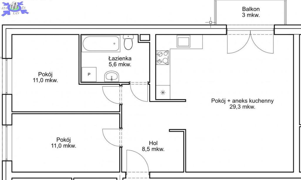
Powierzchnia
65.40 m2
Liczba pokoi
3
Liczba pięter
2
Rodzaj kuchni
otwarta
Stan mieszkania
do wykonczenia
Rok budowy
2024
Droga dojazdowa
asfaltowa
Opis
Zapraszamy do zapoznania się z ofertą sprzedaży mieszkań osiedlu bloków wielorodzinnych przy ul. Chopina w Goleniowie.

Cena zawiera obowiązujący podatek VAT, kupujący nie płaci 2% PCC u Notariusza.

Inwestycja polega na budowie trzech budynków jednoklatkowych w niskiej dwupiętrowej zabudowie z podziemnym parkingiem wielostanowiskowym oraz cichobieżną windą z poziomu parkingu.

Prezentowany Państwu lokal mieszkalny o pow. użytkowej ok. 65,4 m2 znajduje się na parterze budynku nr 3.

Składa się z następujących pomieszczeń
- salon z aneksem kuchennym,
- pokój,
- pokój,
- łazienka,
- przedpokój,

Mieszkanie posiada balkon o powierzchni 3 m2.

STANDARD - stan developerski
- podłogi - posadzka cementowa zatarta na gładko z izolacją termiczną 5 cm, dodatkowo docieplenie stropu nad garażem wełną gr. 15 cm, na
piętrach izolacją akustyczną - 5 cm,
- ściany - tynk wewnętrzny gipsowy maszynowe III kategorii na ścianach silikatowych i stropie żelbetowym,
- okna - profil PCV, 5-komorowa, zestaw 3-szybowy,
- drzwi wejściowe do mieszkania - antywłamaniowe PORTA,

INSTALACJE
- elektryczna - pełne okablowanie budynku i podstawowy osprzęt elektroinstalacyjny,
- RTV - okablowanie mieszkania do telewizji naziemnej oraz przygotowanie instalacji do telewizji kablowej,
- internetowa wewnętrzna,
- wodno - kanalizacyjna - wyprowadzenia instalacyjne bez białego montażu, zaworów i armatury sanitarnej,
- odgromowa,
- domofonowa,
- centralnego ogrzewania - miejskie PEC, grzejniki panelowe z głowicami termostatycznymi,

WYKOŃCZENIE BUDYNKU
- strop żelbetowy,
- ściany zewnętrzne murowane, z bloków silikatowych 24 cm,
- ściany działowe murowane z bloków silikatowych 8 cm,
- schody wewnętrzne żelbetowe,
- posadzka klatek i biegów schodowych - granitowa,
- brama garażowa segmentowa, ażurowa w kolorze szarym z napędem,
- pokrycie dachu - dach drewniany kryty papą, strop docieplony wełną mineralną gr. 25 cm,
- elewacja - ocieplenie styropianem 15 cm, tynk mineralny malowany farbą silikonową, system "STO"
na fragmentach elewacji przyziemia płytki klinkierowe,

Dodatkowo dokupić można miejsce parkingowe w garażu podziemnym w cenie 50.000,00 zł,

ZAKUP MIEJSCA POSTOJOWEGO NIE JEST OBOWIĄZKOWY.

Jeżeli masz ochotę zamieszkać w nowo wybudowanym komfortowym mieszkaniu w centrum miasta, a jednocześnie blisko miejskiego parku to właśnie takie znalazłeś/łaś !!

Zapraszamy do biura sprzedaży w Goleniowie w celu uzyskania szczegółowych informacji o ofercie.

BEZPŁATNIE POMAGAMY W UZYSKANIU KREDYTU



Dodatkowe informacje: balkon, internet, TV kablowa, winda, garaż, parking

Kontakt do agenta

Atalanta Nieruchomości
Marii Konopnickiej 32
71-132 Szczecin
tel.: 914875042
email: info@atalanta.szczecin.pl
fax: 914875031

Wyślij zapytanie

Imię i Nazwisko
Telefon
E-mail
Treść zapytania

Wyrażam zgodę na przetwarzanie moich danych osobowych przez firmę dla celów związanych z działalnością pośrednictwa w obrocie nieruchomościami, jednocześnie potwierdzam, iż zostałem poinformowany o tym, iż będę posiadać dostęp do treści swoich danych do ich edycji lub usunięcia.

Wyślij ofertę

E-mail
© 2025 Atalanta Nieruchomości. Wszystkie prawa zastrzeżone.