Kursy walut NBP: USD 3,98 | EUR 4,32 | CHF 4,53 |

Jesteśmy członkiem:           

Wyszukiwarka
Notes
Zgłoś ofertę
Kalkulator
zgłoś ofertę
Mieszkania
Domy
Działki
Lokale
Obiekty
Szczegóły oferty
Rodzaj oferty
dom ( sprzedaż )
Numer oferty
430454
Miejscowość
TANOWO
Cena
939 000 PLN kalkulator
Cena za mkw
7 757,77 PLN mkw
Powierzchnia
121.04 m2
Pow. działki
1203.00 m2
Liczba pokoi
5
Liczba pięter
2
Stan domu
do wykonczenia
Rok budowy
2025
Droga dojazdowa
utwardzona
Opis
Powstaje nowa inwestycja w samym centrum Tanowa
Domy z zabudowie bliźniaczej z garażem oraz ogródkami przy ulicy Szczecińskiej.
Docelowo inwestycja składać się będzie z dwóch domów w zabudowie szeregowej po 2 segmenty. (Łącznie 4 szeregowców)
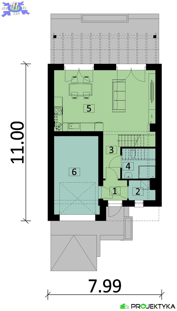
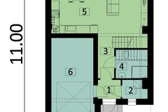
Powierzchnia użytkowa to 121,04m2.
Stan deweloperski, budynek jednorodzinny w zabudowie szeregowej .
Nieruchomość o bardzo funkcjonalnym rozkładzie pomieszczeń.
Przemyślany, funkcjonalny projekt, który zapewni wygodę i przyjemność z przebywania.
Na parterze salon z wyjściem na taras oraz ogródek, kuchnia, WC , schowek ,wiatrołap oraz garażu ok 18,5m2
Z salonu wyjście na piękny ogródek poprzez taras.
Piętro - cztery pokoje, łazienka z WC oraz korytarz.
Fundamenty
- ławy żelbetowe beton
- izolacja przeciwwilgociowa
- izolacja termiczna ścian fundamentowych styropian fundamentowy wodoodporny
Ściany nośne dwuwarstwowe z bloczków silikatowych . Działowe z bloczków silikatowych.
Komin kominkowy - komin systemowy JAWAR .
Dach więźba dachowa drewniana, dachówka ceramiczna, rynny PCV, obróbki blacharskie z blachy stalowej ocynkowanej lub cynkowej
Okna PCV, trzyszybowe, ciepły montaż
Drzwi tarasowe rozsuwane
Schody wewnętrzne monolityczne żelbetowe.
Ocieplenie budynku- styropian zakończony pucem.
Ogrzewanie pompa ciepła , ogrzewanie podłogowe w całym domu i grzejniki łazienkowe.
Teren ogrodzenie przydomowych ogródków - z paneli, dojścia do budynków
Powierzchnia działki na którym posadowione są dwa budynki to powierzchnia 1203 m2.
Nieruchomość ogrodzona. Dojazd drogą główną asfaltową. Dobry dojazd do Szczecina oraz Polic.
W pobliżu przystanki autobusowe, szkoła podstawowa oraz małe sklepiki oraz Dino.
Wysoki standard wykończenia, bliskość do centrum miasta a jednocześnie spokój, cisza oraz bezpieczna okolica gwarantuje komfort zamieszkania.
Przewidywany termin zakończenia inwestycji IV kwartał 2026 roku.
Lokalizacja spokojna, zielona, w sąsiedztwie domów jednorodzinnych.

Nie zwlekaj i już dziś zarezerwuj swój wymarzony dom! Kupując tą nieruchomość nie płacisz PCC! Sprzedaż na podstawie umowy deweloperskiej.

Zapraszam na prezentację!







Kontakt do agenta

Atalanta Nieruchomości
Marii Konopnickiej 32
71-132 Szczecin
tel.: 914875042
email: info@atalanta.szczecin.pl
fax: 914875031

Wyślij zapytanie

Imię i Nazwisko
Telefon
E-mail
Treść zapytania

Wyrażam zgodę na przetwarzanie moich danych osobowych przez firmę dla celów związanych z działalnością pośrednictwa w obrocie nieruchomościami, jednocześnie potwierdzam, iż zostałem poinformowany o tym, iż będę posiadać dostęp do treści swoich danych do ich edycji lub usunięcia.

Wyślij ofertę

E-mail
© 2025 Atalanta Nieruchomości. Wszystkie prawa zastrzeżone.