Kursy walut NBP: USD 3,98 | EUR 4,32 | CHF 4,53 |

Jesteśmy członkiem:           

Wyszukiwarka
Notes
Zgłoś ofertę
Kalkulator
zgłoś ofertę
Mieszkania
Domy
Działki
Lokale
Obiekty
Szczegóły oferty
Rodzaj oferty
mieszkanie ( sprzedaż )
Numer oferty
435605
Miejscowość
SZCZECIN, CENTRUM
Cena
456 000 PLN kalkulator
Cena za mkw
9 539,75 PLN mkw
Powierzchnia
47.80 m2
Liczba pokoi
2
Piętro
2
Liczba pięter
4
Rok budowy
1930
Opis
Prezentujemy ofertę sprzedaży przestronnego, dwupokojowego mieszkania w ścisłym Centrum vis a vis Galaxy. Lokal znajduje się w odnowionej kamienicy przy ulicy Kujawskiej, ślepej uliczce o minimalnym natężeniu ruchu. Mieszkanie z potencjałem do własnej aranżacji, ale bez konieczności wymiany elektryki czy pionów hydraulicznych. Idealne dla osób szukających wygód związanych z bliskością miejskiej infrastruktury, ale bez hałasu i zgiełku. To także bardzo dobra opcja dla inwestora pod wynajem.

Mieszkanie

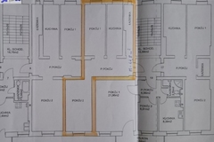
* powierzchnia 47,8mkw, II piętro, wystawa na dwie strony
- dwa pokoje z podstawowym umeblowaniem
- duży przedpokój, gdzie obecnie znajduje się pojemna szafa
- widna kuchnia, w której znajduje się kuchenka gazowa, ale jest także przygotowany kabel 3x2.5 pod podłączenie kuchenki indukcyjnej
- łazienka z oknem, kabiną prysznicową i umywalką
- wc w osobnym pomieszczeniu
* instalacja grzewcza wymieniona została w 2000 r. po usunięciu pieców kaflowych
* instalacja elektryczna nowego typu (miedziana)
* wymieniona hydraulika (także piony)
* okna drewniane nowego typu w bardzo dobrym stanie (uchylne)
* drzwi wejściowe antywłamaniowe
* ogrzewanie i ciepła woda z sieci miejskiej

Budynek

* nowy dach i elewacja
* izolacja pionowa i pozioma budynku
* wyremontowana klatka schodowa
* wymienione piony hydrauliczne
* monitoring wokół budynku i w piwnicy
* miejsca parkingowe dostępne na podwórzu za bramą zamykaną na pilota

Okolica

Ulica Kujawska znajduje się w ścisłym centrum Szczecina. Jest to rewelacyjna lokalizacja dla osób szukających czegoś w kamienicznym klimacie, ale blisko miejskiej infrastruktury, lub inwestycyjnie pod wynajem ze względu na bliskość punktów handlowych, usługowych i komunikacji miejskiej.

W okolicy znajdziemy CH Galaxy, liczne punkty gastronomiczne i restauracje, banki, apteki, paczkomaty, stację benzynową, szkoły, przedszkola, punkty usługowe, place zabaw, boisko orlik itp. W rejonie Placu Grunwaldzkiego i Placu Rodła znajdują się przystanki głównych linii autobusowych i tramwajowych umożliwiające podróż w każdym kierunku Szczecina.
W spacerowej odległości usytuowany jest Park Żeromskiego i Wały Chrobrego. Do Parku Kasprowicza odległość wynosi 2.5 km.
Ważne

* czynsz przy 3 osobach 775zł
* do mieszkania przynależy czysta i sucha piwnica o pow. 11mkw (betonowa podłoga, oświetlenie 12V)
* TV naziemna cyfrowa na dachu
* nowa instalacja elektryczna i hydrauliczna
* spokojni sąsiedzi


Dodatkowe informacje: umeblowane, piwnica, garaż, parking, komórka

Kontakt do agenta

Atalanta Nieruchomości
Marii Konopnickiej 32
71-132 Szczecin
tel.: 914875042
email: info@atalanta.szczecin.pl
fax: 914875031

Wyślij zapytanie

Imię i Nazwisko
Telefon
E-mail
Treść zapytania

Wyrażam zgodę na przetwarzanie moich danych osobowych przez firmę dla celów związanych z działalnością pośrednictwa w obrocie nieruchomościami, jednocześnie potwierdzam, iż zostałem poinformowany o tym, iż będę posiadać dostęp do treści swoich danych do ich edycji lub usunięcia.

Wyślij ofertę

E-mail
© 2025 Atalanta Nieruchomości. Wszystkie prawa zastrzeżone.