Kursy walut NBP: USD 3,98 | EUR 4,32 | CHF 4,53 |

Jesteśmy członkiem:           

Wyszukiwarka
Notes
Zgłoś ofertę
Kalkulator
zgłoś ofertę
Mieszkania
Domy
Działki
Lokale
Obiekty
Szczegóły oferty
Rodzaj oferty
mieszkanie ( sprzedaż )
Numer oferty
435304
Miejscowość
USTRONIE MORSKIE
Cena
293 000 PLN kalkulator
Cena za mkw
10 500 PLN mkw
Powierzchnia
27.89 m2
Liczba pokoi
1
Piętro
2
Liczba pięter
2
Rodzaj kuchni
aneks
Stan mieszkania
do wykonczenia
Rok budowy
2025
Opis
Idealne dla osób szukających własnej przystani nad morzem lub pewnej inwestycji.

Lokale
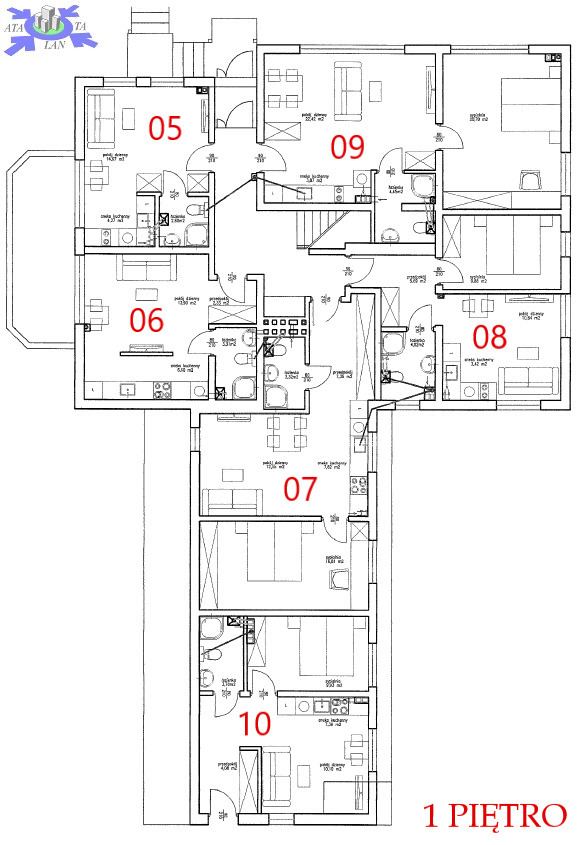
* powierzchnia od 28mkw do 77mkw (rzuty, wymiary i dostępność poszczególnych lokali widoczna na zdjęciach oraz u pośrednika)
* 1- lub 2- pokojowe, z kuchnią w formie aneksu i łazienką, niektóre z balkonem (nr. 5 i 6) lub antresolą (nr. 13) a jedno z garażem w bryle budynku (nr. 4)
* mieszkania na parterze z osobnymi wejściami z dworu, dodatkowo jedno z nich przystosowane dla osób niepełnosprawnych (nr. 2)
* stan deweloperski wykonano gładzie, posadzki samopoziomujące, zamontowano grzejniki, wykonano instalację elektryczną, grzewczą, wodno-kanalizacyjną, okna drewniane II szybowe, parapety z konglomeratu, drzwi wejściowe antywłamaniowe
* ciepła woda i ogrzewanie z dwu obiegowego pieca gazowego znajdującego się w każdym lokalu
* indywidualne liczniki wody, gazu i prądu dla każdego z lokali
* istnieje możliwość wykończenia pod klucz oraz wynajmu pod nadzorem firm współpracujących z biurem nieruchomości (zapewniamy projekt, zakupy z rabatem w Leroy Merlin, wykonanie prac wykończeniowych, a jeśli trzeba także zarządzanie najmem krótkoterminowym)
* do każdego lokalu przynależy prywatne miejsce postojowe zawarte w cenie
* rozprowadzona instalacja TV/internet do każdego lokalu indywidualnie
* podana cena jest ceną brutto (VAT 8% jest już wliczony) - brak podatku PCC 2% przy zakupie

Budynek
* dwupiętrowy dom otoczony zielenią, posadowiony w głębi działki w otoczeniu innych domów gościnnych, z dala od dużych ośrodków, tylko 14 apartamentów
* miejsce do grillowania umiejscowione za budynkiem w kameralnym patio
* do dyspozycji mieszkańców wspólna komórka lokatorska w cenie

Okolica
* Ustronie Morskie to znana i lubiana miejscowość wypoczynkowa i turystyczna. Jest to też doskonała baza wypadowa. W okolicy znajdują się m.in. Rezerwat Wierzchomiński, Ogrody Hortulus, pomniki przyrody i wiele innych atrakcji. Miejscowość oddalona jest zaledwie 10 km od Kołobrzegu i 30 km od Koszalina. W Ustroniu Morskim funkcjonuje transport publiczny - PKS, PKP i busy prywatnych przewoźników. Do autostrady S3 mamy zaledwie 4km, zaś do lotniska Bagicz (loty do Warszawy!) 5km.

Ważne
* teren wspólny o powierzchni ponad 2000mkw ogrodzony z bramą wjazdową
* tylko 14 apartamentów (kameralna zabudowa)
* przedstawione zdjęcia to wizualizacje, możliwość obejrzenia stanu faktycznego podczas prezentacji z pośrednikiem
* podana cena jest ceną brutto (VAT 8% jest już wliczony)
* oddanie do użytku koniec sierpnia br. - przeniesienie własności we wrześniu


Dodatkowe informacje: parking

Kontakt do agenta

Atalanta Nieruchomości
Marii Konopnickiej 32
71-132 Szczecin
tel.: 914875042
email: info@atalanta.szczecin.pl
fax: 914875031

Wyślij zapytanie

Imię i Nazwisko
Telefon
E-mail
Treść zapytania

Wyrażam zgodę na przetwarzanie moich danych osobowych przez firmę dla celów związanych z działalnością pośrednictwa w obrocie nieruchomościami, jednocześnie potwierdzam, iż zostałem poinformowany o tym, iż będę posiadać dostęp do treści swoich danych do ich edycji lub usunięcia.

Wyślij ofertę

E-mail
© 2025 Atalanta Nieruchomości. Wszystkie prawa zastrzeżone.