Kursy walut NBP: USD 3,98 | EUR 4,32 | CHF 4,53 |

Jesteśmy członkiem:           

Wyszukiwarka
Notes
Zgłoś ofertę
Kalkulator
zgłoś ofertę
Mieszkania
Domy
Działki
Lokale
Obiekty
Szczegóły oferty
Rodzaj oferty
dom blizniak ( sprzedaż )
Numer oferty
435262
Miejscowość
SZCZECIN, PŁONIA
Cena
950 000 PLN kalkulator
Cena za mkw
7 307,69 PLN mkw
Powierzchnia
130.00 m2
Pow. działki
520.00 m2
Liczba pokoi
4
Liczba pięter
2
Stan domu
do wykonczenia
Rok budowy
2026
Droga dojazdowa
asfaltowa
Opis
Osiedle Trzy Rzeki to spokojne i urokliwe miejsce na Prawobrzeżu Szczecina, zaledwie 15 minut jazdy samochodem od centrum miasta. Bliskość centrum handlowego przy osiedlu Słonecznym, miasta Stargardu i węzła Kijewo sprawiają, że życie tutaj to nie tylko przyjemność, ale i wygoda. Spacer do rezerwatu przyrody Buczynowe Wąwozy zajmuje 10 minut, a jeszcze bliżej jest do lasku sosnowego, który znajduje się zaledwie 50 m od terenu inwestycji. W pobliżu mieści się też szkoła podstawowa, apteka, sklepy oraz szpital. Dobra infrastruktura, przemyślana zabudowa i spokojna okolica powodują, że Osiedle Trzy Rzeki to idealne miejsce do życia i rozwoju.

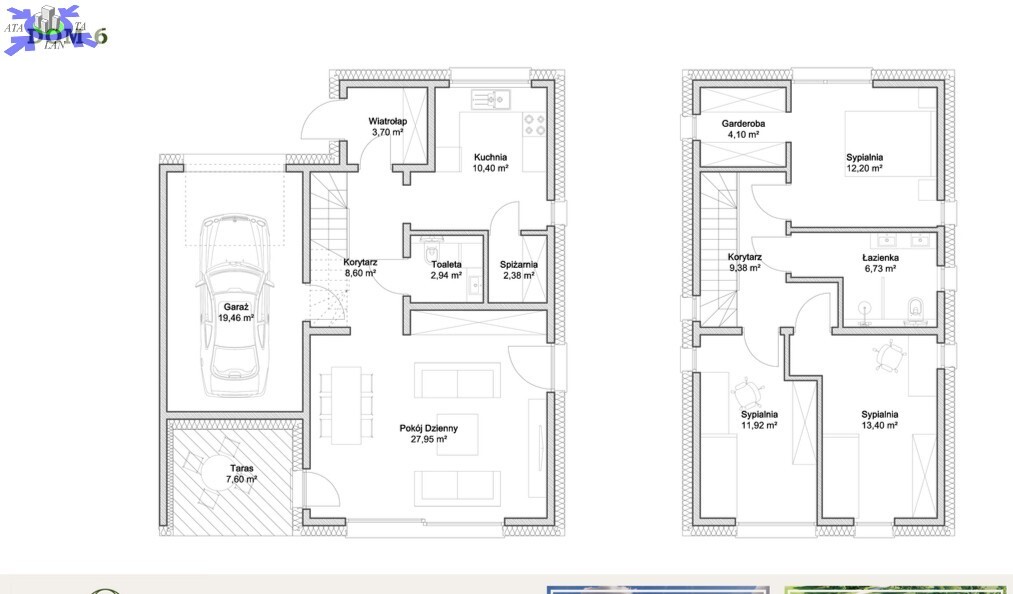
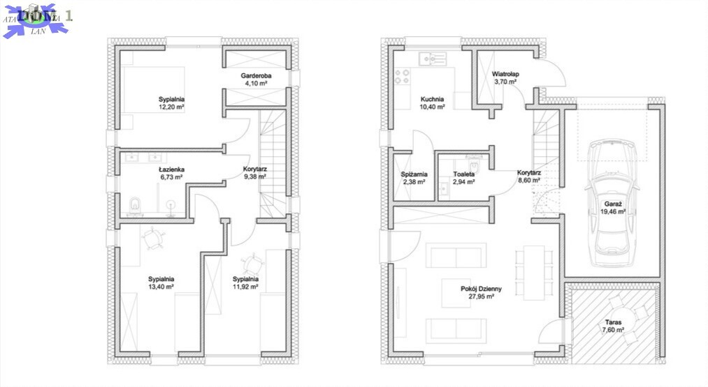
Każdy z ośmiu lokali o pow. 130m2 składa się z dwóch poziomów.
Na pierwszy poziom składa się
-pokój dzienny 27,95m2
-kuchnia 10,4m2
-korytarz 8,6 m2
-wiatrołap 3,7m2
-spiżarnia 2,38m2
-toaleta 2,94m2
Na drugim poziomie znajduje się
-sypialnia 13,4m2
-sypialnia 12,2m2
-sypialnia 11,92
-łazienka 6,73m2
-korytarz 9,38m2

Standard wykończenia
-ogrodzenie
-woda miejska
-szambo ekologiczne
-materiał- silka
-pompa ciepła
-podjazdy wyłożony polbrukiem.

Termin wykończenia inwestycji- lato 2026.





Dodatkowe informacje: garaż

Kontakt do agenta

Atalanta Nieruchomości
Marii Konopnickiej 32
71-132 Szczecin
tel.: 914875042
email: info@atalanta.szczecin.pl
fax: 914875031

Wyślij zapytanie

Imię i Nazwisko
Telefon
E-mail
Treść zapytania

Wyrażam zgodę na przetwarzanie moich danych osobowych przez firmę dla celów związanych z działalnością pośrednictwa w obrocie nieruchomościami, jednocześnie potwierdzam, iż zostałem poinformowany o tym, iż będę posiadać dostęp do treści swoich danych do ich edycji lub usunięcia.

Wyślij ofertę

E-mail
© 2025 Atalanta Nieruchomości. Wszystkie prawa zastrzeżone.