Kursy walut NBP: USD 3,98 | EUR 4,32 | CHF 4,53 |

Jesteśmy członkiem:           

Wyszukiwarka
Notes
Zgłoś ofertę
Kalkulator
zgłoś ofertę
Mieszkania
Domy
Działki
Lokale
Obiekty
Szczegóły oferty
Rodzaj oferty
mieszkanie ( sprzedaż )
Numer oferty
435246
Miejscowość
SZCZECIN, ŁASZTOWNIA
Ulica
Celna
Cena
709 749 PLN kalkulator
Cena za mkw
13 550 PLN mkw
Powierzchnia
52.38 m2
Liczba pokoi
2
Piętro
3
Liczba pięter
6
Rodzaj kuchni
aneks
Stan mieszkania
do wykonczenia
Rok budowy
2024
Opis
Na sprzedaż 2-pokojowe mieszkanie z dużą garderobą i ogródkiem, oferowane w stanie deweloperski, położone na 3. piętrze nowego apartamentowca w dynamicznie rozwijającej się szczecińskiej dzielnicy Łasztownia.

NIERUCHOMOŚĆ
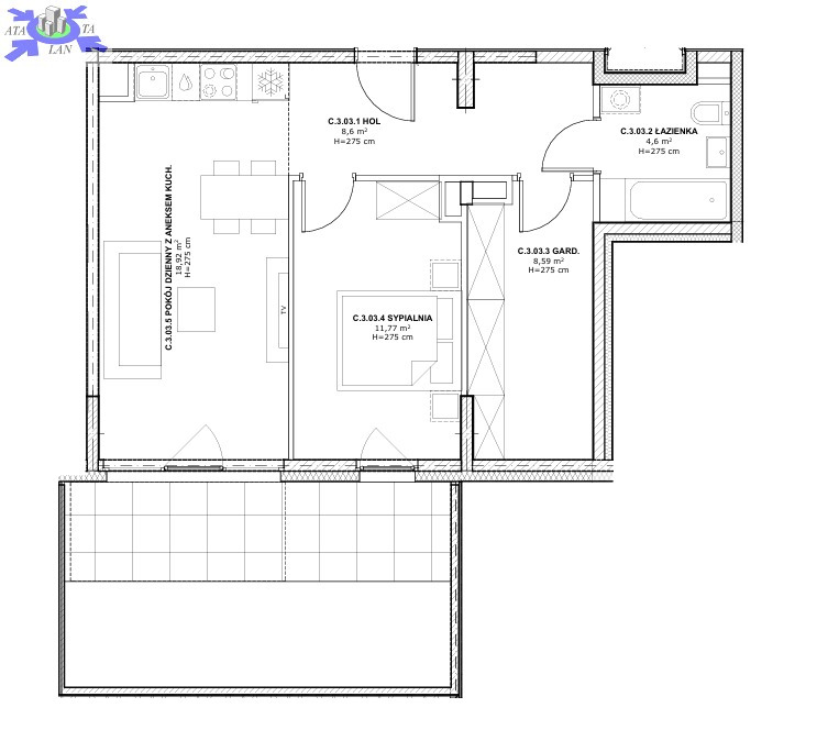
Mieszkanie o powierzchni 52,48 m2 składa się z

- pokoju dziennego z aneksem kuchennym (18,92 m2),
- sypialni (11,77 m2),
- oddzielnej garderoby (8,59 m2),
- łazienki (4,60 m2),
- holu (8,60 m2),
- tarasu (9,93 m2) i ogródka (10,61 m2).

Istnieje możliwość zakupu miejsca postojowego w ogrzewanej hali garażowej, komórki lokatorskiej oraz boksu na rowery.

STAN NIERUCHOMOŚCI
Nieruchomość w stanie deweloperskim. Do własnej aranżacji i wykończenia.

BUDYNEK i OKOLICA
- nowa inwestycja wykonana w wysokim standardzie,
- przestronne, wysokie (do 276 cm) mieszkania z panoramicznymi przeszkleniami oraz balkonami, tarasami lub ogródkami,
- części wspólne w budynku wykonane elegancko i zapewniające komfort mieszkańcom,
- ścieżki, chodniki oraz place wykonane z kostki granitowej z pasmami świetlnymi ukrytymi w posadzce,
- w budynku dostępne specjalne rowerownie do przechowywania rowerów dla lokatorów,
- brak barier dla osób starszych i z niepełnosprawnościami,
- na parterze budynku lokale przystosowane pod działalność usługową,
- duża liczba (większa niż ilość mieszkań) miejsc parkingowych w halach garażowych oraz ogólnodostępne miejsca w okolicy.

LOKALIZACJA
Dynamicznie rozwijająca się dzielnica nad rzeką Odrą, tuż przy Starym Mieście i w bliskiej odległości od centrum miasta.
Bardzo dobrze skomunikowana okolica (tramwaje, autobusy, dworzec główny PKP i PKS) z szybkim dostępem do punktów handlowo-usługowych (targowisko Tobruk, CH Kaskada), oświaty (PUM, ZUT, Uniwersytet Szczeciński, licea, szkoły, przedszkola itd.) oraz gastronomii. W pobliżu dostępne liczne instytucje kultury - Morskie Centrum Nauki, Opera na Zamku, Muzeum Narodowe, Filharmonia Szczecińska, teatry oraz atrakcje turystyczne i miejsca rekreacji.

DLA KOGO JEST TA NIERUCHOMOŚĆ
Mieszkanie idealne dla singla, pary oraz inwestorów. Dla osób lubiących zarówno miejski styl życia, jak i bliskość natury oraz miłośników sportów wodnych.
Świetnie sprawdzi się jako inwestycja pod wynajem!

DLACZEGO WARTO KUPIĆ TO MIESZKANIE?
- znakomita, prężnie rozwijająca się i reprezentacyjna lokalizacja,
- mieszkanie do własnej aranżacji, zgodnie z gustem właściciela,
- nowa inwestycja wykonana nowocześnie i w wysokim standardzie,
- kupujący nie płaci podatku PCC,
- rewelacyjne jako inwestycja pod wynajem!

W ofercie dostępne również inne mieszkania w tej inwestycji o różnych parametrach oraz lokale usługowe!

Serdecznie polecam i zapraszam na prezentację!

Dodatkowe informacje: winda, parking

Kontakt do agenta

Atalanta Nieruchomości
Marii Konopnickiej 32
71-132 Szczecin
tel.: 914875042
email: info@atalanta.szczecin.pl
fax: 914875031

Wyślij zapytanie

Imię i Nazwisko
Telefon
E-mail
Treść zapytania

Wyrażam zgodę na przetwarzanie moich danych osobowych przez firmę dla celów związanych z działalnością pośrednictwa w obrocie nieruchomościami, jednocześnie potwierdzam, iż zostałem poinformowany o tym, iż będę posiadać dostęp do treści swoich danych do ich edycji lub usunięcia.

Wyślij ofertę

E-mail
© 2025 Atalanta Nieruchomości. Wszystkie prawa zastrzeżone.