Kursy walut NBP: USD 3,98 | EUR 4,32 | CHF 4,53 |

Jesteśmy członkiem:           

Wyszukiwarka
Notes
Zgłoś ofertę
Kalkulator
zgłoś ofertę
Mieszkania
Domy
Działki
Lokale
Obiekty
Szczegóły oferty
Rodzaj oferty
mieszkanie ( sprzedaż )
Numer oferty
435179
Miejscowość
POLICE
Ulica
Rycerska
Cena
479 562 PLN kalkulator
Cena za mkw
8 905,52 PLN mkw
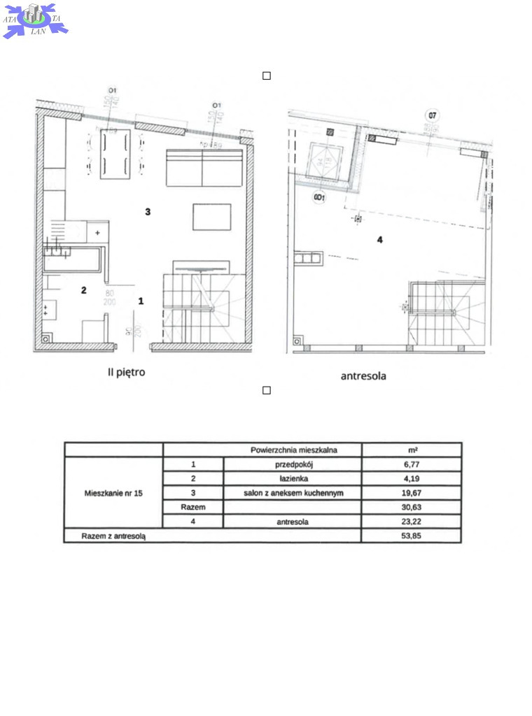
Powierzchnia
53.85 m2
Liczba pokoi
3
Piętro
2
Liczba pięter
2
Rodzaj kuchni
aneks
Stan mieszkania
do wykonczenia
Rok budowy
2024
Opis
Na sprzedaż wyjątkowe, dwupoziomowe mieszkanie w Policach przy ul. Rycerskiej 7C

Oferujemy Państwu przestronne mieszkanie o powierzchni 53,85 m2, zlokalizowane w nowoczesnym budynku z 2024 roku. Nieruchomość znajduje się na 2. piętrze kameralnego, dwupiętrowego bloku.

Układ mieszkaniaI poziom przestronny salon z aneksem kuchennym (19,67 m2) oraz łazienka (4,19 m2),
II poziom (antresola 23,22 m2) idealne na sypialnie, gabinet lub pokój dziecięcy.
do mieszkania przynależy dodatkowa powierzchnia (10,6 m2) na antresoli
Mieszkanie sprzedawane jest w standardzie deweloperskim, co daje nowym właścicielom możliwość wykończenia wnętrza według własnych potrzeb i gustu.

Atuty nieruchomościNowoczesne budownictwo z 2024 roku,
Ogrzewanie z sieci miejskiej,
Przemyślany, dwupoziomowy układ pomieszczeń,
Możliwość zakupu miejsca postojowego w hali garażowej w cenie 49 200 zł,
Kameralne osiedle w otoczeniu zieleni.

Technologia wykonania budynku

Konstrukcja
-Fundamenty, na podkładzie z chudego betonu.
-Ściany fundamentowe oraz garażu wykonane w technologii żelbetowej.
-Ściany nośne kondygnacji nadziemnych wykonane w technologii murowanej z silikatów
-Ściany między lokalowe z silikatu gr 18 cm akustyczny
-Ściany działowe mieszkań murowane z bloczków silikatowych
-Dach w konstrukcji drewnianej, z pokryciem z dachówki ceramicznej i papy
-Stropy kondygnacji żelbetowe.
-Podciągi i słupy żelbetowe

Wykończenie wewnętrzne budynku
-Elewacja - ocieplenie styropianem + tynk cienkowarstwowy, malowane farbą Sto Lotusan
-Stolarka okienna PVC trzyszybowa, w kolorze białym i 7016 od zewnątrz

Zakres prac w częściach wspólnych inwestycji
-Drzwi zewnętrzne do klatki schodowej aluminiowe
-Balustrady balkonów - w konstrukcji stalowej
-Balustrady klatki schodowej - stalowe
-Platforma dla niepełnosprawnych
-Posadzki klatki schodowej - płytki gresowe
-Posadzki korytarzy - płytki gresowe
-Posadzki garażu - wylewka betonowa przemysłowa

Lokalizacja
Mieszkanie położone jest w atrakcyjnej części Polic - w sąsiedztwie znajdują się sklepy, szkoły, przedszkola oraz punkty usługowe. Bliskość lasów i ścieżek rowerowych sprawia, że to doskonała propozycja dla osób ceniących aktywny tryb życia i kontakt z naturą. Jednocześnie lokalizacja zapewnia sprawną komunikację z centrum miasta i Szczecinem.

Dodatkowa oferta W budynku dostępnych jest jeszcze 13 mieszkań o powierzchni od 35 m2 do 90 m2 - od nowoczesnych kawalerek z ogródkiem po komfortowe, dwupoziomowe mieszkania z tarasem.

Cena
Nieruchomość oferowana jest w bardzo atrakcyjnej cenie, co czyni tę propozycję szczególnie interesującą zarówno dla osób prywatnych, jak i inwestorów poszukujących mieszkania pod wynajem.




Kontakt do agenta

Atalanta Nieruchomości
Marii Konopnickiej 32
71-132 Szczecin
tel.: 914875042
email: info@atalanta.szczecin.pl
fax: 914875031

Wyślij zapytanie

Imię i Nazwisko
Telefon
E-mail
Treść zapytania

Wyrażam zgodę na przetwarzanie moich danych osobowych przez firmę dla celów związanych z działalnością pośrednictwa w obrocie nieruchomościami, jednocześnie potwierdzam, iż zostałem poinformowany o tym, iż będę posiadać dostęp do treści swoich danych do ich edycji lub usunięcia.

Wyślij ofertę

E-mail
© 2025 Atalanta Nieruchomości. Wszystkie prawa zastrzeżone.