Kursy walut NBP: USD 3,98 | EUR 4,32 | CHF 4,53 |

Jesteśmy członkiem:           

Wyszukiwarka
Notes
Zgłoś ofertę
Kalkulator
zgłoś ofertę
Mieszkania
Domy
Działki
Lokale
Obiekty
Szczegóły oferty
Rodzaj oferty
lokal gastronomiczny ( sprzedaż )
Numer oferty
435115
Miejscowość
SZCZECIN, ŚRÓDMIEŚCIE-CENTRUM
Ulica
Monte Cassino
Cena
799 000 PLN kalkulator
Cena za mkw
7 740,75 PLN mkw
Powierzchnia
103.22 m2
Liczba pięter
5
Rok budowy
1930
Opis
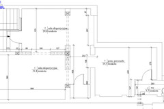
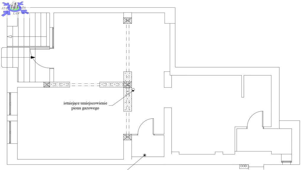
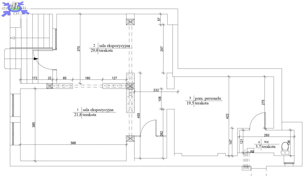
Na sprzedaż lokal gastronomiczny położony na parterze z bezpośrednim wejściem z ulicy.

Bliska odległość placu Grunwaldzkiego i placu Odrodzenia generuje duże natężenie ruchu pieszych, samochodów i tramwajów.

Lokal posiada duże nowoczesne witryny, składa się z dwóch kondygnacji.
Na pierwszej kondygnacji znajduje się sala restauracyjna i kuchnia.
Podpiwniczenie stanowi aktualnie magazyn, który można dowolnie zaaranżować.

Ogrzewanie podłogowe z pieca gazowego.

Zapraszam po szczegóły.


Kontakt do agenta

Atalanta Nieruchomości
Marii Konopnickiej 32
71-132 Szczecin
tel.: 914875042
email: info@atalanta.szczecin.pl
fax: 914875031

Wyślij zapytanie

Imię i Nazwisko
Telefon
E-mail
Treść zapytania

Wyrażam zgodę na przetwarzanie moich danych osobowych przez firmę dla celów związanych z działalnością pośrednictwa w obrocie nieruchomościami, jednocześnie potwierdzam, iż zostałem poinformowany o tym, iż będę posiadać dostęp do treści swoich danych do ich edycji lub usunięcia.

Wyślij ofertę

E-mail
© 2025 Atalanta Nieruchomości. Wszystkie prawa zastrzeżone.