Kursy walut NBP: USD 3,98 | EUR 4,32 | CHF 4,53 |

Jesteśmy członkiem:           

Wyszukiwarka
Notes
Zgłoś ofertę
Kalkulator
zgłoś ofertę
Mieszkania
Domy
Działki
Lokale
Obiekty
Szczegóły oferty
Rodzaj oferty
dom blizniak ( sprzedaż )
Numer oferty
434803
Miejscowość
MIERZYN
Cena
1 050 000 PLN kalkulator
Cena za mkw
7 608,7 PLN mkw
Powierzchnia
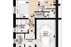
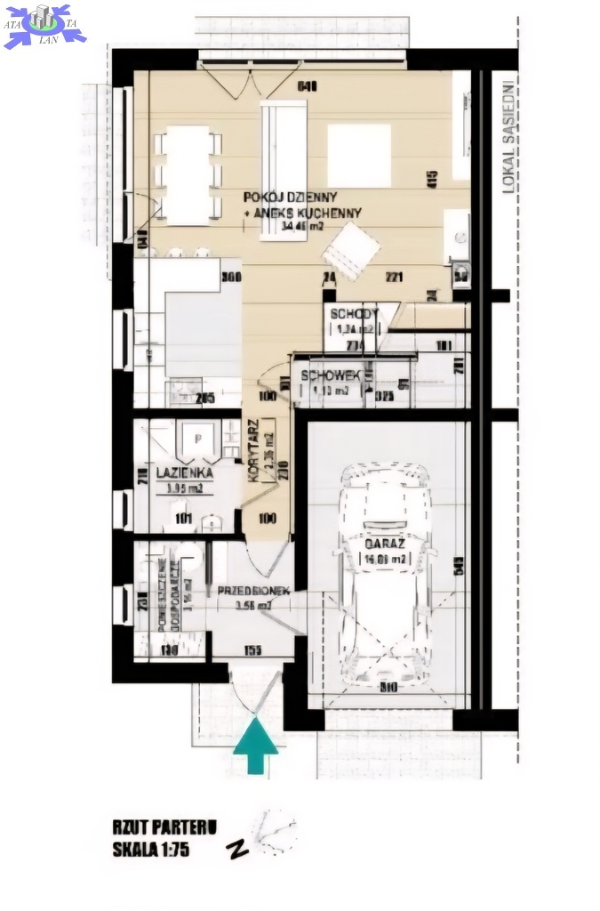
138.00 m2
Pow. działki
300.00 m2
Liczba pokoi
5
Rodzaj kuchni
otwarta
Stan domu
idealny
Rok budowy
2024
Droga dojazdowa
utwardzona
Opis
Przedmiotem ogłoszenia jest dom bliźniak położony w Mierzynie. Prezentowana inwestycja to wyjątkowe połączenie nowoczesnej architektury i kameralnej zabudowy z szybkim dostępem do infrastruktury handlowo-usługowej.

Dzięki wyjątkowej lokalizacji zaledwie kilkanaście minut dzieli Cię od centrum Szczecina.

Każdy z domów ma powierzchnię 138m2 + strych i jest usytuowany na działce o powierzchni 300m2. Dom bliźniak został zaprojektowany z troską o komfort użytkowania wszystkich pomieszczeń wyłączając ograniczenia wynikające z różnicy wysokości pomieszczeń.

Atuty nieruchomości

wszystkie pomieszczenia mają pełną wysokość (brak skosów)
własne ujęcie wody
ogrzewanie i ciepła woda - nowoczesna pompa ciepła bardzo cicha (Samsung)
szeroka droga dojazdowa (10m szerokości)
ogrodzenie w cenie
zastosowano okna trzyszybowe

Zapraszamy do kontaktu i prezentacji domu.

Dodatkowe informacje: garaż

Kontakt do agenta

Atalanta Nieruchomości
Marii Konopnickiej 32
71-132 Szczecin
tel.: 914875042
email: info@atalanta.szczecin.pl
fax: 914875031

Wyślij zapytanie

Imię i Nazwisko
Telefon
E-mail
Treść zapytania

Wyrażam zgodę na przetwarzanie moich danych osobowych przez firmę dla celów związanych z działalnością pośrednictwa w obrocie nieruchomościami, jednocześnie potwierdzam, iż zostałem poinformowany o tym, iż będę posiadać dostęp do treści swoich danych do ich edycji lub usunięcia.

Wyślij ofertę

E-mail
© 2025 Atalanta Nieruchomości. Wszystkie prawa zastrzeżone.