Kursy walut NBP: USD 3,98 | EUR 4,32 | CHF 4,53 |

Jesteśmy członkiem:           

Wyszukiwarka
Notes
Zgłoś ofertę
Kalkulator
zgłoś ofertę
Mieszkania
Domy
Działki
Lokale
Obiekty
Szczegóły oferty
Rodzaj oferty
mieszkanie ( sprzedaż )
Numer oferty
434433
Miejscowość
SZCZECIN, CENTRUM
Cena
827 475 PLN kalkulator
Cena za mkw
16 500 PLN mkw
Powierzchnia
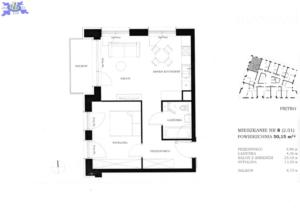
50.15 m2
Liczba pokoi
2
Piętro
2
Liczba pięter
5
Rodzaj kuchni
aneks
Stan mieszkania
do wykonczenia
Rok budowy
2025
Droga dojazdowa
asfaltowa
Opis
W nowej inwestycji, w której zastosowano nowoczesne rozwiązania i nowoczesny design w centrum Szczecina
OPIS MIESZKANIA mieszkanie 2 pokojowe o powierzchni 50,15 m2, z wyjściem na balkon o powierzchni 4,75 m2. Pokój z aneksem kuchennym o powierzchni 23,03 m2, sypialnia 16,83 m2, łazienka 3,75 m2, przedpokój 5,42 m2. Balkon od strony południowej o powierzchni 4,75 m2. II piętro w V piętrowym budynku z windą. Wystawa okien południowa.

W mieszkaniu klimatyzacja, sterowanie ogrzewaniem za pomocą aplikacji, komfortowe maty grzewcze w łazienkach, system kontaktronów w oknach wyłączających ogrzewanie, hotelowy wyłącznik światła, już nie ma konieczności sprawdzania każdego pomieszczenia, jednym ruchem wyłączają się wszystkie lampy w mieszkaniu. Ponadto system Kontaktronów w oknach wyłączających ogrzewanie w przypadku otwarcia okna, okna trójszybowe. Ogrzewanie i ciepła woda z Szczecińskiej Energetyki Cieplnej (SEC). W budynku nie ma gazu. Niski czynsz.

Przewidywany czas udostępnienia mieszkania grudzień 2025 roku.
Miejsce postojowe w garażu podziemnym w cenie 90.000 zł.

OPIS BUDYNKU budynek wybudowany z bloczków silikatowych.

Dodatkowe informacje: balkon, winda, garaż

Kontakt do agenta

Atalanta Nieruchomości
Marii Konopnickiej 32
71-132 Szczecin
tel.: 914875042
email: info@atalanta.szczecin.pl
fax: 914875031

Wyślij zapytanie

Imię i Nazwisko
Telefon
E-mail
Treść zapytania

Wyrażam zgodę na przetwarzanie moich danych osobowych przez firmę dla celów związanych z działalnością pośrednictwa w obrocie nieruchomościami, jednocześnie potwierdzam, iż zostałem poinformowany o tym, iż będę posiadać dostęp do treści swoich danych do ich edycji lub usunięcia.

Wyślij ofertę

E-mail
© 2025 Atalanta Nieruchomości. Wszystkie prawa zastrzeżone.