Kursy walut NBP: USD 3,98 | EUR 4,32 | CHF 4,53 |

Jesteśmy członkiem:           

Wyszukiwarka
Notes
Zgłoś ofertę
Kalkulator
zgłoś ofertę
Mieszkania
Domy
Działki
Lokale
Obiekty
Szczegóły oferty
Rodzaj oferty
mieszkanie ( sprzedaż )
Numer oferty
434429
Miejscowość
SZCZECIN, CENTRUM
Cena
1 322 540 PLN kalkulator
Cena za mkw
17 800 PLN mkw
Powierzchnia
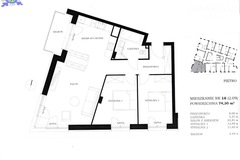
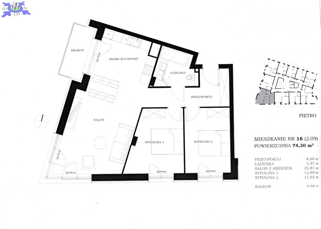
74.30 m2
Liczba pokoi
3
Piętro
1
Liczba pięter
5
Rodzaj kuchni
aneks
Stan mieszkania
do wykonczenia
Rok budowy
2025
Droga dojazdowa
asfaltowa
Opis
W nowej inwestycji, w której zastosowano nowoczesne rozwiązania i nowoczesny design w centrum Szczecina.

OPIS MIESZKANIA mieszkanie 3 pokojowe o powierzchni 74,3 m2, z wyjściem na balkon o powierzchni 4,64 m2. Pokój z aneksem kuchennym o powierzchni 35,81 m2, sypialnia 12,89 m2 i 11,63 m2 łazienka 5,37 m2, przedpokój 8,6 m2. Balkon od strony zachodniej o powierzchni 4,64 m2. I piętro w V piętrowym budynku z windą. Wystawa okien południowa i zachodnia.
W mieszkaniu klimatyzacja, sterowanie ogrzewaniem za pomocą aplikacji, komfortowe maty grzewcze w łazienkach, system kontaktronów w oknach wyłączających ogrzewanie, hotelowy wyłącznik światła, już nie ma konieczności sprawdzania każdego pomieszczenia, jednym ruchem wyłączają się wszystkie lampy w mieszkaniu. Ponadto system Kontaktronów w oknach wyłączających ogrzewanie w przypadku otwarcia okna, okna trójszybowe. Ogrzewanie i ciepła woda z Szczecińskiej Energetyki Cieplnej (SEC). W budynku nie ma gazu. Niski czynsz.

Przewidywany czas udostępnienia mieszkania grudzień 2025 roku.
Miejsce postojowe w garażu podziemnym w cenie 90.000 zł

OPIS BUDYNKU budynek wybudowany z bloczków silikatowych.

Dodatkowe informacje: balkon, winda, garaż

Kontakt do agenta

Atalanta Nieruchomości
Marii Konopnickiej 32
71-132 Szczecin
tel.: 914875042
email: info@atalanta.szczecin.pl
fax: 914875031

Wyślij zapytanie

Imię i Nazwisko
Telefon
E-mail
Treść zapytania

Wyrażam zgodę na przetwarzanie moich danych osobowych przez firmę dla celów związanych z działalnością pośrednictwa w obrocie nieruchomościami, jednocześnie potwierdzam, iż zostałem poinformowany o tym, iż będę posiadać dostęp do treści swoich danych do ich edycji lub usunięcia.

Wyślij ofertę

E-mail
© 2025 Atalanta Nieruchomości. Wszystkie prawa zastrzeżone.