Kursy walut NBP: USD 3,98 | EUR 4,32 | CHF 4,53 |

Jesteśmy członkiem:           

Wyszukiwarka
Notes
Zgłoś ofertę
Kalkulator
zgłoś ofertę
Mieszkania
Domy
Działki
Lokale
Obiekty
Szczegóły oferty
Rodzaj oferty
mieszkanie ( sprzedaż )
Numer oferty
434261
Miejscowość
SZCZECIN, WARSZEWO
Cena
739 000 PLN kalkulator
Cena za mkw
10 705,49 PLN mkw
Powierzchnia
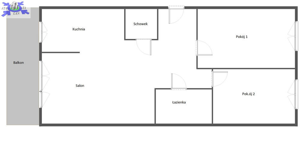
69.03 m2
Liczba pokoi
3
Liczba pięter
4
Rodzaj kuchni
aneks
Stan mieszkania
bardzo dobry
Rok budowy
2013
Opis
Serdecznie zapraszam do zapoznania się z ofertą przestronnego mieszkania, położonego w dzielnicy Warszewo budynek z 2016r.
Lokal położony na parterze, czteropiętrowego budynku bez barier architektonicznych.

Mieszkanie w stanie bardzo dobrym sprzedawane z pełnym wyposażeniem widocznym na zdjęciach.
Salon z aneksem kuchennym w jasnych przyjemnych kolorach o powierzchni około 30m2, z wyjściem na przestronny balkon.
Kuchnia z oknem, meble w zabudowie wykonane na zamówienie przez stolarza, sprzęty wysokiej jakości.
Obok kuchni znajduje się schowek/garderoba o powierzchni około 1,5.
Z przedpokoju kierujemy się do 2 sypialni o podobnym metrażu około 10m2.
Łazienka duża wyposażona w wannę, natrysk i WC.

Mieszkanie przestronne z licznymi miejscami do przechowywania, meblami wykonanymi na zamówienie.
Drzwi antywłamaniowe. W oknach zamontowane rolety zewnętrzne sterowane elektronicznie.
W bliskiej okolicy nowo budowana strefa parkowa z licznymi miejscami do wypoczynku.
W najbliższym czasie Zarządca zamontuje szlabany wjazdowe co ułatwi parkowanie na zewnętrzy wyłącznie właścicielom osiedla.

Dodatkowo, nie obligatoryjnie, można zakupić garaż ( nie miejsce postojowe), w garażowcu znajdującym się bezpośrednio pod budynkiem.
Powierzchnia garażu to 19,27m2 w cenie 125 000zł

Mieszkanie jest gotowe do wydania wraz z całym wyposażeniem. W jednej z sypialni meble VOX. W salonie meble drewniane wykonane na zamówienie.

Zapraszam do osobistej weryfikacji.

Dodatkowe informacje: umeblowane, balkon, garaż, parking

Kontakt do agenta

Atalanta Nieruchomości
Marii Konopnickiej 32
71-132 Szczecin
tel.: 914875042
email: info@atalanta.szczecin.pl
fax: 914875031

Wyślij zapytanie

Imię i Nazwisko
Telefon
E-mail
Treść zapytania

Wyrażam zgodę na przetwarzanie moich danych osobowych przez firmę dla celów związanych z działalnością pośrednictwa w obrocie nieruchomościami, jednocześnie potwierdzam, iż zostałem poinformowany o tym, iż będę posiadać dostęp do treści swoich danych do ich edycji lub usunięcia.

Wyślij ofertę

E-mail
© 2025 Atalanta Nieruchomości. Wszystkie prawa zastrzeżone.