Opis
Przestronne mieszkanie 3 pokojowe położone w centrum Szczecina w pięknie odrestaurowanej kamienicy na 1 piętrze
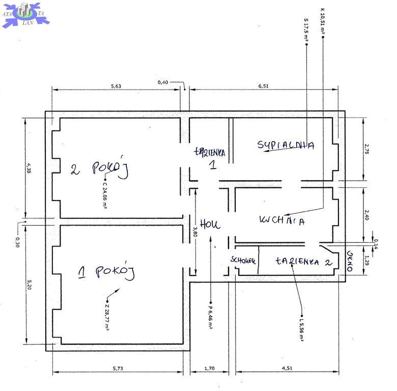
Przedmiotem sprzedaży jest mieszkanie o powierzchni 87,88 m2 składające się z
- 3 pokoi o powierzchni 27m2, 22m2, 14m2
- widnej kuchni
- dwóch łazienek z prysznicami
- hollu
- schowka
Generalny remont w mieszkaniu przeprowadzono 4 lata temu, wymieniając na nową instalację wodno-kanalizacyjną, prądu i gazu. Ocieplono również sufity. Pomieszczenia o wysokości 3 m dają wrażenie ogromnej przestronności. Okna wymienione na trzyszybowe, doskonale tłumią dźwięki. Na podłogach panele o dobrej klasie ścieralności. Ogrzewanie i ciepłą wodę zapewnia nowy piec z zasobnikiem wody Saunier Duval.
Czynsz do zarządcy w kwocie 864 zł. Jest piwnica.
Mieszkanie zapewnia bliskość wszystkich niezbędnych obiektów użyteczności publicznej, sklepów, kawiarni, niedaleko znajduje się również park. Jednocześnie uroczo zagospodarowane podwórko pozwala zapomnieć, że znajdujemy się w samym centrum miasta.
Przy kupnie mieszkania istnieje również możliwość przejęcia używanego przez obecnych właścicieli miejsca parkingowego na parkingu przy byłym kinie Kosmos.
Dodatkowe informacje: telefon, internet, TV kablowa, piwnica