Rodzaj oferty
dom wolnostojacy ( sprzedaż )
Opis
Nowa niższa cena 100.000zł niższa!
Mierzyn na sprzedaż bardzo ładny 5 letni dom wolnostojący o pow. całkowitej po podłodze 217,82m2 , powierzchnia użytkowa 157.1m2.
Doskonała lokalizacja - na końcu ślepej cichej kameralnej prywatnej ulicy.
Dom wybudowany z bardzo dobrych materiałów w/g najnowszych norm dzięki czemu jest bardzo oszczędny w eksploatacji.
Ocieplony styropianem 20cm grafitowym, okna 3 szybowe z roletami zewnętrznymi + duże okno tarasowe HS,
Fotowoltaika 10 kw,
Ogrzewany pompą ciepła (ogrzewanie podłogowe). Rekuperacja
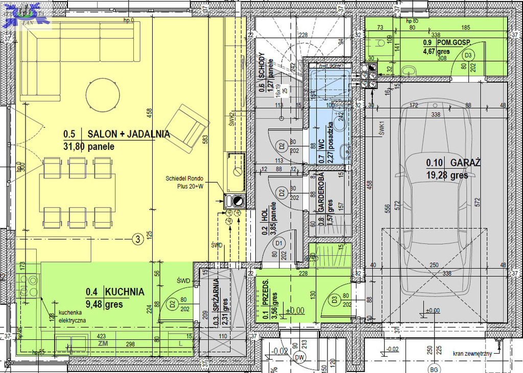
Parter przestronny salon z kominkiem 31,08m2 z kuchnią 9,48m2, łazienka 2,27m2, garderoba 1,57m2, przedsionek 3,56m2, holl 3,85m2, spiżarnia 2,3m2.
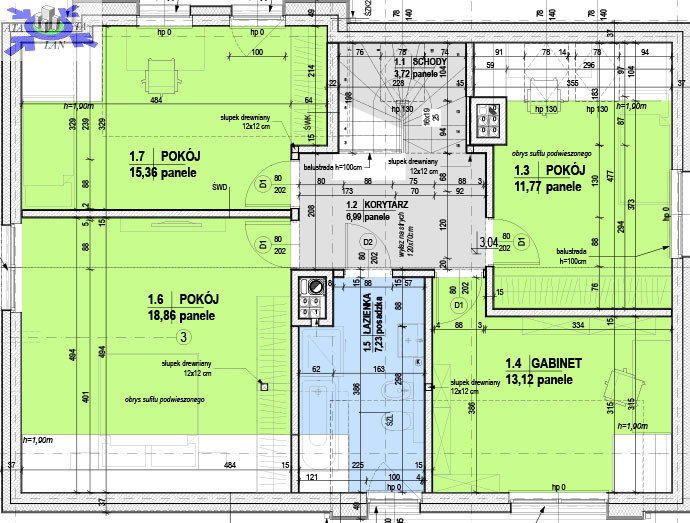
Piętro 4 pokoje 18,86m2, 15,36m2, 13,12m2, 11,77m2 + łazienka z wc 7,23m2, korytarz 7m2
W pokojach bardzo dobrej jakości panele, w kuchni i hollu gres.
Wszystkie stałe zabudowy jak kuchnia , szafy na wymiar itp pozostają.
UWAGA! - SPRZEDAJĄCY WYSTAWIA FV - kupujący zwolniony z 2 % podatku PCC
Wyłączność