Rodzaj oferty
dom blizniak ( sprzedaż )
Opis
Na sprzedaż nowoczesny dom w zabudowie bliźniaczej na Bezrzeczu.
Dom oddzielony od sąsiada podwójną ścianą nośną z dylatacją styropianu pomiędzy ( 18+3+18 )
Sprzedaż na podstawie umowy deweloperskiej i rachunku powierniczego.
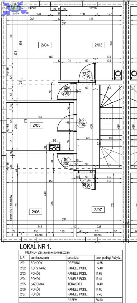
W budynku na piętrze brak skosów, układ bardzo funkcjonalny, pomieszczenia są ustawne.
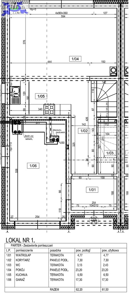
Parter salon z aneksem kuchennym, przedsionek, łazienka oraz garaż. Na piętrze cztery pokoje, łazienka, korytarz.
Dodatkowo na strychu będzie opcja wygospodarowania dodatkowego pokoju - około 30m2 powierzchni użytkowej z możliwością zamontowania wygodnych schodów na stałe (we własnym zakresie) - lub będzie to przestrzeń magazynowa.
Bliźniaki wykonane w podwyższonym standardzie developerskim
- ogrzewanie podłogowe w każdym pomieszczeniu
- pompa ciepła Atlantic
- system rekuperacji
- instalacje pod fotowoltaikę
- ściany nośne 24cm + 20 cm styropianu
- okna trzy szybowe, ciepły montaż ( kolor na zewnątrz antracyt w środku białe )
- system kominowy, możliwość podłączenia kominka
- tynki maszynowe, gipsowe
- schody na piętro wylewane, żelbetowe
- drzwi zewnętrzne antywłamaniowe firmy Wikęd
- brama garażowa segmentowa na pilota, ocieplona - Wiśniowski
- rozprowadzone instalacje elektryczna oraz wodno-kanalizacyjna
- instalacja alarmowa, R-TV i internetowa.
- dachówka ceramiczna szkliwiona - Roben Monza plus
- strop ocieplony celuloza lub piana PUR
- schody strychowe, drewniane
zagospodarowanie zewnętrzne
- podjazd i wejście do domu z polbruku i kostki ażurowej
- taras z kostki betonowej
- teren wyrównany
- ogródki między sąsiadami otoczone siatką - systemową.
- tynk zewnętrzny silikonowo-silikatowy
Elewacja budynku jasna biała lub złamana biel z elementami koloru szarego lub antracytowego.
Kupujący zwolniony z opłaty PCC, 2 % do Urzędu Skarbowego.
Zapraszam na prezentację