Rodzaj oferty
obiekt produkcyjno_magazynowy ( sprzedaż )
Opis
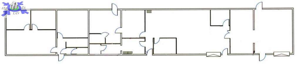
Na sprzedaż obiekt magazynowo - handlowy, murowany, o powierzchni ok. 500m2 (wymiary zewnętrzne ok 10x50 m) z wysokimi sufitami (ok.3,2m w najniższych miejscach do prawie 5m w najwyższych) w Szczecinie na Pogodnie.
Obiekt w dobrym stanie technicznym do ewentualnego odświeżenia. Posiada 2 bramy wjazdowe, wys. 2,5m szer. 2,9m. Świetna lokalizacja blisko głównej ulicy, umożliwia dobry dojazd samochodów dostawczych. Obiekt doskonały na wszelkiego rodzaju usługi, składy budowlane, hurtownie, handel, produkcję itp.
Pomieszczenia pomieszczenie biurowe z łazienka. Szatnie dla pracowników, pomieszczenie socjalne. Obiekt stanowiący odrębną własność, na działce ok. 1.700m2 (w użytkowaniu wieczystym), media (energia elektryczna, siła, kanalizacja, woda).
Opłata za użytkowanie wieczyste - 22.000 zł. na rok.
Zapraszamy na prezentację !