Opis
Na sprzedaż kompaktowe, 2 pokojowe mieszkanie usytuowane między Parkiem Chopina a Parkiem Zdrojowym. To świetna propozycja dla singli, pary lub małej rodziny chcących zmieścić się w określonym budżecie.
Mieszkanie położone jest przy ul. Paderewskiego - to cicha i spokojna okolica, a zarazem blisko centrum i wszystkich udogodnień.
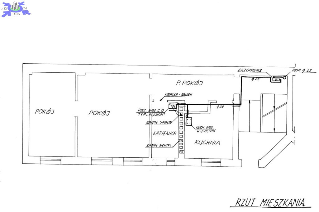
Mieszkanie
* powierzchnia 44,41mkw, wysokość 2,6m
* 1 piętro, okna (PCV) na wschód
* 2 pokoje, widna kuchnia, łazienka, korytarz
* CO i ciepła woda z kotła gazowego dwubiegowego
* niski czynsz administracyjny - 484 zł przy 2 osobach z dużymi zwrotami
* prąd i gaz wg zużycia
* przynależna piwnica
Budynek
* oficyna kamienicy z zielonym podwórkiem
* miejsca parkingowe wzdłuż ulicy bez strefy płatnego parkowania
Okolica
Świnoujście to popularna miejscowość wypoczynkowa i turystyczna, oddalona zaledwie 100 km od Szczecina i 20 km od Międzyzdrojów, zaś oddanie do użytku tunelu łączącego lewy brzeg przybliżyło ją jeszcze bardziej. Nie bez znaczenia dla regionu jest przeprawa promowa do Skandynawii oraz lotnisko w Heringsdorf (13 km).
Mieszkanie położone jest w zielonej okolicy - do Parku Chopina mamy 200m, a do Parku Zdrojowego 450m. Najbliższy sklep typu Żabka oddalony jest o zaledwie 300m, w pobliżu znajdziemy też restauracje, przedszkola, liceum, place zabaw i liczne atrakcje Świnoujścia, m. in. Fontannę Śruba. Tuż obok budynku usytuowany jest przystanek skąd odjeżdżają autobusy linii 6 i A. Do promenady odległość wynosi 850m, a do Plaży 1km.
Dodatkowe informacje: umeblowane, piwnica, komórka