Kursy walut NBP: USD 3,98 | EUR 4,32 | CHF 4,53 |

Jesteśmy członkiem:           

Wyszukiwarka
Notes
Zgłoś ofertę
Kalkulator
zgłoś ofertę
Mieszkania
Domy
Działki
Lokale
Obiekty
Szczegóły oferty
Rodzaj oferty
lokal biurowy ( sprzedaż )
Numer oferty
433459
Miejscowość
SZCZECIN, ŁASZTOWNIA
Ulica
Bulwar Gdański
Cena
939 000 PLN kalkulator
Cena za mkw
10 485,76 PLN mkw
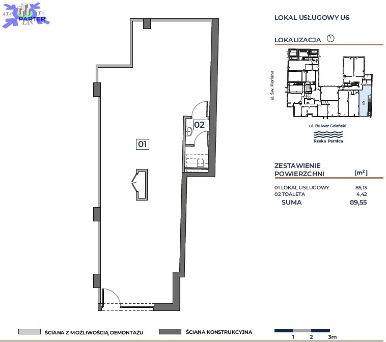
Powierzchnia
89.55 m2
Liczba pokoi
2
Liczba pięter
5
Rok budowy
2025
Opis
Na sprzedaż lokal usługowy w stanie deweloperskim, zlokalizowane w nowoczesnym budynku w doskonałej lokalizacji - tuż przy rozwijającym się centrum Szczecina, w sąsiedztwie Łasztowni przy ul. Bulwary Gdańskie.

Najważniejsze informacje
* Lokal o powierzchni 89,55
* Lokal przygotowany do własnej aranżacji
* Duże witryny zapewniające doskonałą ekspozycję i doświetlenie wnętrza
* Nowoczesny budynek z windą
* Parter z bezpośrednim wejściem z ulicy
* Ogrzewanie podłogowe z sieci miejskiej

Możliwość powiększenia lokalu - na sprzedaż dostępne są także sąsiednie lokale o różnym metrażu.

Dodatkowe atuty
* Nowoczesna architektura budynku
* Stan deweloperski - pełna swoboda aranżacji
* Przygotowane przyłącza mediów
* Możliwość instalacji klimatyzacji
* Miejsca parkingowe w pobliżu bez strefy.

Lokalizacja
* Zaledwie kilka minut spacerem od Łasztowni - nowoczesnej i dynamicznie rozwijającej się części miasta
* Dogodny dojazd do centrum oraz dostęp do komunikacji miejskiej

Idealny lokal pod działalność usługową, biurową lub handlową.

Do ceny należy doliczyć podatek VAT 23%

Zapraszam na prezentację.

Wyłączność.

Dodatkowe informacje: winda

Kontakt do agenta

Atalanta Nieruchomości
Marii Konopnickiej 32
71-132 Szczecin
tel.: 914875042
email: info@atalanta.szczecin.pl
fax: 914875031

Wyślij zapytanie

Imię i Nazwisko
Telefon
E-mail
Treść zapytania

Wyrażam zgodę na przetwarzanie moich danych osobowych przez firmę dla celów związanych z działalnością pośrednictwa w obrocie nieruchomościami, jednocześnie potwierdzam, iż zostałem poinformowany o tym, iż będę posiadać dostęp do treści swoich danych do ich edycji lub usunięcia.

Wyślij ofertę

E-mail
© 2025 Atalanta Nieruchomości. Wszystkie prawa zastrzeżone.