Opis
Na wynajem lokal o powierzchni 160 m2 w doskonałej lokalizacji - bliska odległość od centrum, dobry wyjazd z miasta.
Teren ogrodzony, możliwość parkowania aut na terenie.
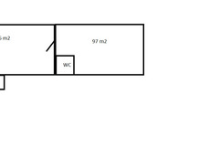
Lokal składa się z 2 pomieszczeń + hol/wiatrołap (6,5m2) - jedno o pow. 56 m2 - obecnie jako sala sprzedaży/biuro, a drugie o pow. 97 m2 obecnie pełni funkcję magazynową - wjazd bramą o wym. 2,68 x 2,6 m z poziomu 0, bez barier. Wysokość 2,5 m w części biurowej i 3,3 m- 3,6 m w magazynowej.
Toaleta do wyłącznej dyspozycji.
Posadzka utwardzona w części magazynowej, kafle w części biurowej.
Czynsz 35 zł netto/ m2 = 5.600 zł netto/m-c
Umowa na minimum 1 rok.
Opłaty dodatkowe prąd (własny podlicznik)
Ogrzewanie grzejniki elektryczne/klimatyzator.
Zapraszam do kontaktu i na prezentację.