Kursy walut NBP: USD 3,98 | EUR 4,32 | CHF 4,53 |

Jesteśmy członkiem:           

Wyszukiwarka
Notes
Zgłoś ofertę
Kalkulator
zgłoś ofertę
Mieszkania
Domy
Działki
Lokale
Obiekty
Szczegóły oferty
Rodzaj oferty
mieszkanie ( sprzedaż )
Numer oferty
420818
Miejscowość
TRZĘSACZ
Ulica
Pałacowa
Cena
705 376 PLN kalkulator
Cena za mkw
11 200 PLN mkw
Powierzchnia
62.98 m2
Liczba pokoi
3
Liczba pięter
1
Stan mieszkania
do wykonczenia
Rok budowy
2023
Opis
Polecamy Państwu apartament położony w urokliwej, nadmorskiej miejscowości Trzęsacz.
Budynek znajduje się zaledwie ok. 500 m od pięknej plaży. Idealna oferta dla osób ceniących sobie wypoczynek nad morzem z dala od zatłoczonych kurortów typu Międzyzdroje czy Świnoujście.

Proponowany apartament jest częścią inwestycji obejmującej 24 apartamenty o powierzchni od 29 m2 do 66,5 m2. Budynek stoi w miejscu pałacowej stajni i jest połączeniem nowoczesności z klimatem pobliskiego pałacu. Mur pruski oraz liczne drewniane elementy przepięknie nawiązują do byłej oraz istniejącej zabudowy.

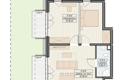
Apartament będący przedmiotem tej oferty znajduje się na parterze i ma powierzchnię 62,94 m2. Składa się z salonu z aneksem kuchennym, 2 sypialni, łazienki i przedpokoju.
Z salonu oraz dwóch sypialni jest wyjście na słoneczne tarasy oraz niemal 130 metrowy ogródek!
Zapraszam do przejrzenia galerii. Znajduje się tam rzut lokalu oraz całej kondygnacji.

Na terenie obiektu znajduje się plac zabaw oraz podgrzewany pompą ciepła basen tylko do użytku właścicieli!
Deweloper planując inwestycję postawił na nowoczesność i ekologię. W każdym z apartamencie zastosowany został system rekuperacji, a na dachu zamontowane zostały panele fotowoltaiczne.
Ogrzewanie apartamentów poprzez indywidualne piece gazowe.

Czynsz wynosi 8,5 zł/m2 w tym utrzymanie wszystkich części wspólnych.

Apartamenty oddawane są w stanie deweloperskim.
Możliwość wykończenia 'pod klucz' w ramach dodatkowych funduszy.

Na terenie inwestycji znajdują się 24 prywatne miejsca postojowe. Istnieje możliwość kupienia takiego miejsca za dodatkową kwotę 35 tyś. netto.

Podana cena jest ceną netto. Cały projekt objęty jest stawką 23 % VAT.

Zapraszamy na niewątpliwie miłą dla oka prezentację!!!

Dodatkowe informacje: balkon, internet, TV kablowa, garaż

Kontakt do agenta

Atalanta Nieruchomości
Marii Konopnickiej 32
71-132 Szczecin
tel.: 914875042
email: info@atalanta.szczecin.pl
fax: 914875031

Wyślij zapytanie

Imię i Nazwisko
Telefon
E-mail
Treść zapytania

Wyrażam zgodę na przetwarzanie moich danych osobowych przez firmę dla celów związanych z działalnością pośrednictwa w obrocie nieruchomościami, jednocześnie potwierdzam, iż zostałem poinformowany o tym, iż będę posiadać dostęp do treści swoich danych do ich edycji lub usunięcia.

Wyślij ofertę

E-mail
© 2025 Atalanta Nieruchomości. Wszystkie prawa zastrzeżone.