Kursy walut NBP: USD 3,98 | EUR 4,32 | CHF 4,53 |

Jesteśmy członkiem:           

Wyszukiwarka
Notes
Zgłoś ofertę
Kalkulator
zgłoś ofertę
Mieszkania
Domy
Działki
Lokale
Obiekty
Szczegóły oferty
Rodzaj oferty
dom blizniak ( sprzedaż )
Numer oferty
432066
Miejscowość
BĘDARGOWO
Cena
985 000 PLN kalkulator
Cena za mkw
7 576,92 PLN mkw
Powierzchnia
130.00 m2
Pow. działki
320.00 m2
Liczba pokoi
6
Liczba pięter
2
Rodzaj kuchni
aneks
Stan domu
do wykonczenia
Rok budowy
2025
Droga dojazdowa
z kostki brukowej
Opis
Na sprzedaż nowoczesny, komfortowy bliźniak w stanie deweloperskim w cichej malowniczej miejscowości Będargowo.

Dom oddzielony od sąsiada podwójną ścianą nośną z dylatacją styropianu pomiędzy ( 18+3+18 )
Wyodrębniona osobna Księga Wieczysta na grunt o pow. 320m2.

Sprzedaż na podstawie umowy deweloperskiej i rachunku powierniczego.

standard Deweloperski

- ogrzewanie i ciepła woda - indywidualna pompa cieplna powietrzna
- ogrzewanie podłogowe na parterze i piętrze
- instalacja internetowa i telewizyjna do indywidualnego spięcia przez kupującego.


- ściany konstrukcyjne wykonane z pustaków ceramicznych, ocieplone styropianem 20 cm.
- elewacja - tynk mineralny barwiony w masie
- strop nad parterem żelbetonowy

- dach dwuspadowy, więźba drewniana, pokryty dachówką ceramiczną płaską w kolorze antracyt
- rury i rynny PCV w kolorze antracytowym
- tynki wewnętrzne gipsowe w łazienkach cementowo-wapienne
- piony wentylacyjne murowane

- okna i drzwi tarasowe PCV, 3 szybowe - ciepły montaż na taśmach, w kolorze antracyt na zewnątrz i białe wewnątrz.
- drzwi na taras w systemie przesuwnym - PSK.
- drzwi wejściowe w kolorze antracytowym

- instalacja wodna i kanalizacyjna wewnętrzna bez białego montażu, bez urządzeń
- instalacja elektryczna z białym montażem
- ujęcie wody zewnętrzne/ ogrodowe

- teren wokół budynku wyrównany
- ogrodzenie ogródków z tyłu budynku z paneli systemowych
- dojazdy do budynku, droga wewnętrzna wykonana z kostki betonowej
- dwa miejsca parkingowe - kostka ażurowa
- wydzielone miejsce na śmietnik

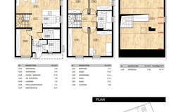
Na powierzchnię 130 m2 składają się na parterze

- salon z jadalnią o pow. 26m2
- kuchnia o pow 6 m2 powiększona optycznie przez komunikację.
- garderoba / pokój biurowy / p. rodziców o pow. 9m2 - istnieje kilka możliwości.
- łazienka z toaletą o pow. 3,7m2
- pom. gospodarcze o pow. 3m2
- wiatrołap

Piętro ( skos od 2,2m )

- pokój o pow. 12,8m2
- pokój o pow. 12,4m2
- pokój o pow. 12,4m2
- pokój o pow. 12,5m2
- łazienka razem z toaletą o pow, 5,8m2
- korytarz

Antresola o pow. użytkowej 7,24m2 a powierzchnia podłogi wynosi 43m2 - idealna na biuro / magazyn / pokój rodziców.


Kupujący zwolniony z opłaty PCC, 2 % do Urzędu Skarbowego.
Będargowo oddalone jest 8km od Szczecina w miejscowości znajduje się szkoła podstawowa, kościół, autobus linii 243, stadnina koni i kilka firm.

Oferta skierowana do najbardziej wymagających Klientów, ceniących wysoki standard wykończenia.

Oferta na wyłączność nie szukaj dalej.

Zapraszam na prezentację

Dodatkowe informacje: garaż

Kontakt do agenta

Atalanta Nieruchomości
Marii Konopnickiej 32
71-132 Szczecin
tel.: 914875042
email: info@atalanta.szczecin.pl
fax: 914875031

Wyślij zapytanie

Imię i Nazwisko
Telefon
E-mail
Treść zapytania

Wyrażam zgodę na przetwarzanie moich danych osobowych przez firmę dla celów związanych z działalnością pośrednictwa w obrocie nieruchomościami, jednocześnie potwierdzam, iż zostałem poinformowany o tym, iż będę posiadać dostęp do treści swoich danych do ich edycji lub usunięcia.

Wyślij ofertę

E-mail
© 2025 Atalanta Nieruchomości. Wszystkie prawa zastrzeżone.