Kursy walut NBP: USD 3,98 | EUR 4,32 | CHF 4,53 |

Jesteśmy członkiem:           

Wyszukiwarka
Notes
Zgłoś ofertę
Kalkulator
zgłoś ofertę
Mieszkania
Domy
Działki
Lokale
Obiekty
Szczegóły oferty
Rodzaj oferty
lokal ( wynajem )
Numer oferty
430895
Miejscowość
SZCZECIN, CENTRUM
Cena
4 410 PLN
Cena za mkw
84 PLN mkw
Powierzchnia
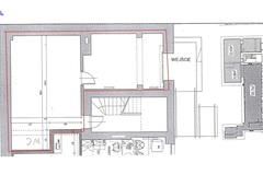
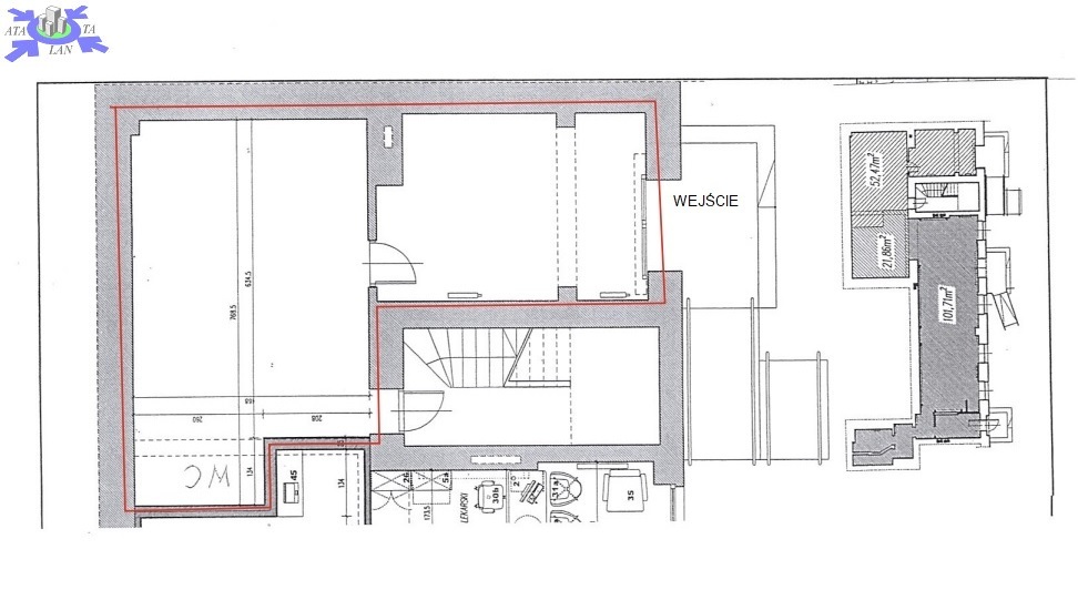
52.50 m2
Liczba pokoi
3
Liczba pięter
4
Rok budowy
1970
Droga dojazdowa
asfaltowa
Opis
Do wynajęcia lokal o charakterze usługowym zlokalizowany w Centrum Szczecina. Powierzchnia 52,5 m2, składa się z dwóch pomieszczeń i WC. Ogrzewanie z lokalnej kotłowni. Opłaty dodatkowe to prąd, woda i odprowadzenie ścieków (osobny licznik, płatność wg zużycia). Opłata za centralne ogrzewanie zawarta jest w cenie najmu. Lokal nie posiada witryn, światło dzienne dociera tylko przez drzwi wejściowe. Możliwość prowadzenia w lokalu działalności biurowej, usługowej, medycznej lub innej. Bardzo dobry dojazd komunikacją miejską (autobusy i tramwaje), miejsca parkingowe ogólnodostępne. Bardzo duży przepływ pieszych oraz samochodów. Możliwość umieszczenia reklamy na elewacji budynku. Lokalizacja bardzo łatwa do określenia dla Klientów.


Dodatkowe informacje: parking

Kontakt do agenta

Atalanta Nieruchomości
Marii Konopnickiej 32
71-132 Szczecin
tel.: 914875042
email: info@atalanta.szczecin.pl
fax: 914875031

Wyślij zapytanie

Imię i Nazwisko
Telefon
E-mail
Treść zapytania

Wyrażam zgodę na przetwarzanie moich danych osobowych przez firmę dla celów związanych z działalnością pośrednictwa w obrocie nieruchomościami, jednocześnie potwierdzam, iż zostałem poinformowany o tym, iż będę posiadać dostęp do treści swoich danych do ich edycji lub usunięcia.

Wyślij ofertę

E-mail
© 2025 Atalanta Nieruchomości. Wszystkie prawa zastrzeżone.