Kursy walut NBP: USD 3,98 | EUR 4,32 | CHF 4,53 |

Jesteśmy członkiem:           

Wyszukiwarka
Notes
Zgłoś ofertę
Kalkulator
zgłoś ofertę
Mieszkania
Domy
Działki
Lokale
Obiekty
Szczegóły oferty
Rodzaj oferty
mieszkanie ( sprzedaż )
Numer oferty
430175
Miejscowość
SZCZECIN, ŁASZTOWNIA
Ulica
Celna
Cena
880 000 PLN kalkulator
Cena za mkw
17 384,43 PLN mkw
Powierzchnia
50.62 m2
Liczba pokoi
2
Piętro
1
Liczba pięter
5
Rodzaj kuchni
aneks
Stan mieszkania
do wykonczenia
Rok budowy
2024
Opis
Planujesz skredytować to marzenie - zadzwoń.

Nad Odrą to prestiżowy kompleks budynków, powstający w jednym z najciekawszych i coraz modniejszych miejsc Szczecina - na Łasztowni, nad brzegiem rzeki, w miejscu tętniącym życiem- sercu miasta. Łasztownia to nowy punkt na kulturalno- turystycznej mapie Szczecina, miejsce modne i tętniące życiem. Przyszła wizytówka miasta.

Lokalizacja idealna na inwestycje jak i do komfortowego mieszkania.

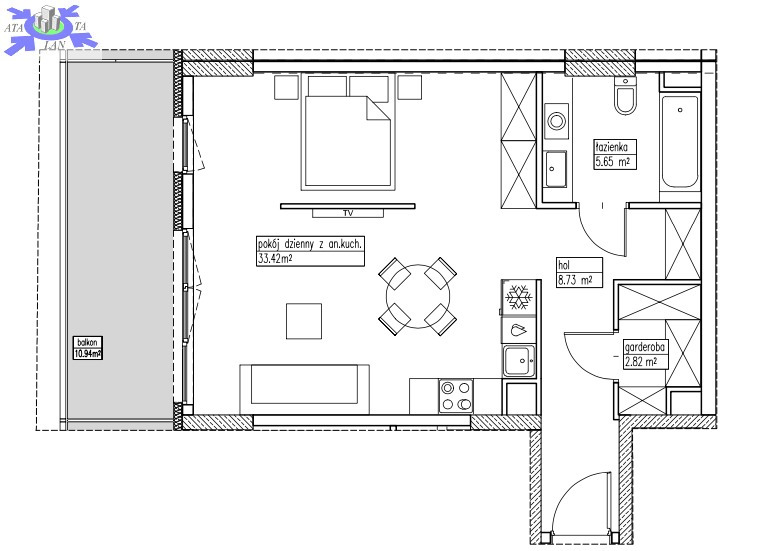
Apartament o powierzchni 48,65, składa się z salonu z aneksem kuchennym, wydzielonej sypialni, łazienki, garderoby i holu.

Mieszkanie posiada duży balkon od strony rzeki z widokiem na wodę i miasto.

Standard wykończenia, deweloperski

Do mieszkania można dokupić miejsce postojowe w cenie 60 tys. oraz komórkę lokatorską.

Posiadamy jeszcze do sprzedaży podobne apartamenty na piętrz III i IV, także od strony Odry z widokiem rzekę i miasto.

Zadzwoń i zapoznaj się ze szczegółami oferty.






Dodatkowe informacje: balkon, winda, garaż

Kontakt do agenta

Atalanta Nieruchomości
Marii Konopnickiej 32
71-132 Szczecin
tel.: 914875042
email: info@atalanta.szczecin.pl
fax: 914875031

Wyślij zapytanie

Imię i Nazwisko
Telefon
E-mail
Treść zapytania

Wyrażam zgodę na przetwarzanie moich danych osobowych przez firmę dla celów związanych z działalnością pośrednictwa w obrocie nieruchomościami, jednocześnie potwierdzam, iż zostałem poinformowany o tym, iż będę posiadać dostęp do treści swoich danych do ich edycji lub usunięcia.

Wyślij ofertę

E-mail
© 2025 Atalanta Nieruchomości. Wszystkie prawa zastrzeżone.