Kursy walut NBP: USD 3,98 | EUR 4,32 | CHF 4,53 |

Jesteśmy członkiem:           

Wyszukiwarka
Notes
Zgłoś ofertę
Kalkulator
zgłoś ofertę
Mieszkania
Domy
Działki
Lokale
Obiekty
Szczegóły oferty
Rodzaj oferty
lokal biurowy ( wynajem )
Numer oferty
411898
Miejscowość
SZCZECIN
Cena
13 022 PLN
Cena za mkw
34 PLN mkw
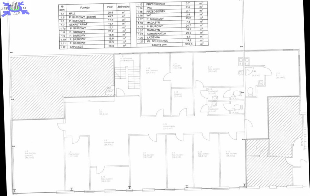
Powierzchnia
383.00 m2
Piętro
1
Liczba pięter
1
Rok budowy
1995
Droga dojazdowa
asfaltowa
Opis
Do wynajmu powierzchnia biurowa znajdująca się na terenie magazynowym. Pierwsze piętro w dobrym standardzie. Czynsz najmu wynosi 34 pln netto/m2+opłata serwisowa w kwocie 2,5 pln netto/m2. Obiekt chroniony przez agencję ochrony-w dni powszednie od 1530 do 7 rano, w soboty, niedziele i święta przez całą dobę. Koszty ochrony pokrywają wszyscy najemcy, w przypadku tych biur jest to 1365 pln netto/m-c. Bliskość Szczecina i łatwy dojazd do drogi S3, a także przejścia granicznego sprawia że jest to atrakcyjna oferta. Wynajem możliwy od zaraz. Dostępność lokalu 24h/7 dni w tygodniu.

Dodatkowe informacje: parking

Kontakt do agenta

Atalanta Nieruchomości
Marii Konopnickiej 32
71-132 Szczecin
tel.: 914875042
email: info@atalanta.szczecin.pl
fax: 914875031

Wyślij zapytanie

Imię i Nazwisko
Telefon
E-mail
Treść zapytania

Wyrażam zgodę na przetwarzanie moich danych osobowych przez firmę dla celów związanych z działalnością pośrednictwa w obrocie nieruchomościami, jednocześnie potwierdzam, iż zostałem poinformowany o tym, iż będę posiadać dostęp do treści swoich danych do ich edycji lub usunięcia.

Wyślij ofertę

E-mail
© 2025 Atalanta Nieruchomości. Wszystkie prawa zastrzeżone.