Kursy walut NBP: USD 3,98 | EUR 4,32 | CHF 4,53 |

Jesteśmy członkiem:           

Wyszukiwarka
Notes
Zgłoś ofertę
Kalkulator
zgłoś ofertę
Mieszkania
Domy
Działki
Lokale
Obiekty
Szczegóły oferty
Rodzaj oferty
lokal biurowy ( sprzedaż )
Numer oferty
425300
Miejscowość
SZCZECIN, NIEBUSZEWO
Cena
1 000 000 PLN kalkulator
Cena za mkw
12 500 PLN mkw
Powierzchnia
80.00 m2
Liczba pokoi
3
Liczba pięter
4
Rok budowy
1994
Droga dojazdowa
z kostki brukowej
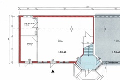
Opis


Sprzedam samodzielny lokal handlowo-usługowy w Szczecina w dzielnicy Niebuszewo. Lokal posiada swoją witrynę przy wejściu. Lokal nadaje się pod prowadzenie każdej działalności gospodarczej np. handel, usługi, produkcja, biuro rachunkowe, kancelarie notarialną, gabinety lekarskie itp. Przed budynkiem dwa miejsca parkingowe.


* Powierzchnia całkowita lokalu 80,16 m2


* Lokal składa się z 3 pomieszczeń

- Sali sprzedaży o powierzchni 59,3 m2, ściany gładzone pomalowane, na podłodze terakota.
- Pomieszczenia socjalnego z WC o powierzchni . 8,15 m2 uposażony umywalkę i WC, całość w glazurze i terakocie.
- Magazynu o powierzchni 11,21 m2 ściany gładzone malowane na podłodze terakota.

Lokal został wybudowany w 1999 roku.
- lokal bezczynszowy.
- instalacja alarmowa i sieci internetowej w każdym z pokoi biurowych.

- Ogrzewanie lokalu z własnego ogrzewania, przy zakupie dwóch lokali z własnego pieca gazowego.

Możliwość zakupu lokalu wraz z dobrze prosperującym najemcą.


Zapraszam na prezentację.

Dodatkowe informacje: parking

Kontakt do agenta

Atalanta Nieruchomości
Marii Konopnickiej 32
71-132 Szczecin
tel.: 914875042
email: info@atalanta.szczecin.pl
fax: 914875031

Wyślij zapytanie

Imię i Nazwisko
Telefon
E-mail
Treść zapytania

Wyrażam zgodę na przetwarzanie moich danych osobowych przez firmę dla celów związanych z działalnością pośrednictwa w obrocie nieruchomościami, jednocześnie potwierdzam, iż zostałem poinformowany o tym, iż będę posiadać dostęp do treści swoich danych do ich edycji lub usunięcia.

Wyślij ofertę

E-mail
© 2025 Atalanta Nieruchomości. Wszystkie prawa zastrzeżone.