Kursy walut NBP: USD 3,98 | EUR 4,32 | CHF 4,53 |

Jesteśmy członkiem:           

Wyszukiwarka
Notes
Zgłoś ofertę
Kalkulator
zgłoś ofertę
Mieszkania
Domy
Działki
Lokale
Obiekty
Szczegóły oferty
Rodzaj oferty
dom wolnostojacy ( sprzedaż )
Numer oferty
425055
Miejscowość
GOLCZEWO
Cena
650 000 PLN kalkulator
Cena za mkw
2 765,96 PLN mkw
Powierzchnia
235.00 m2
Pow. działki
1958.00 m2
Liczba pokoi
4
Liczba pięter
1
Rok budowy
2019
Opis

Ofertą sprzedaży jest atrakcyjny dom położony 5 min drogi od centrum Stargardu.

Dom posadowiony na dużej , prostokątnej działce o powierzchni 1954mkw.
Na czas budowy, na terenie postawiony domek (altana) ok.30mkw, z miejscem do gotowania,
wypoczynku a także wydzielonym miejscem do spania (mała antresola).


Dom - stan surowy zamknięty
Dachówka Roben - antracyt połysk
Okna 3-szybowe białe.
Bloczki beton komórkowy - suporex
Teren ogrodzony z 3 stron siatką ogrodzeniową.
Brama garażowa otwierana pilotem, duża (na 2 auta)
W garażu na jednym stanowisku jest kanał.


Powierzchnia parteru to 132mkw + garaż dwustanowiskowy o powierzchni 31mkw.
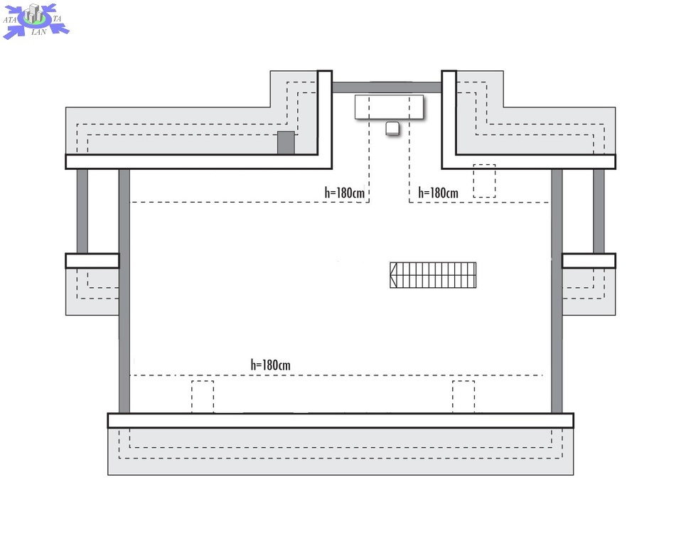
Strop piętra betonowy dzięki czemu całe poddasze można dowolnie zaaranżować.
Zyskujemy dodatkowe 100mkw powierzchni domu.

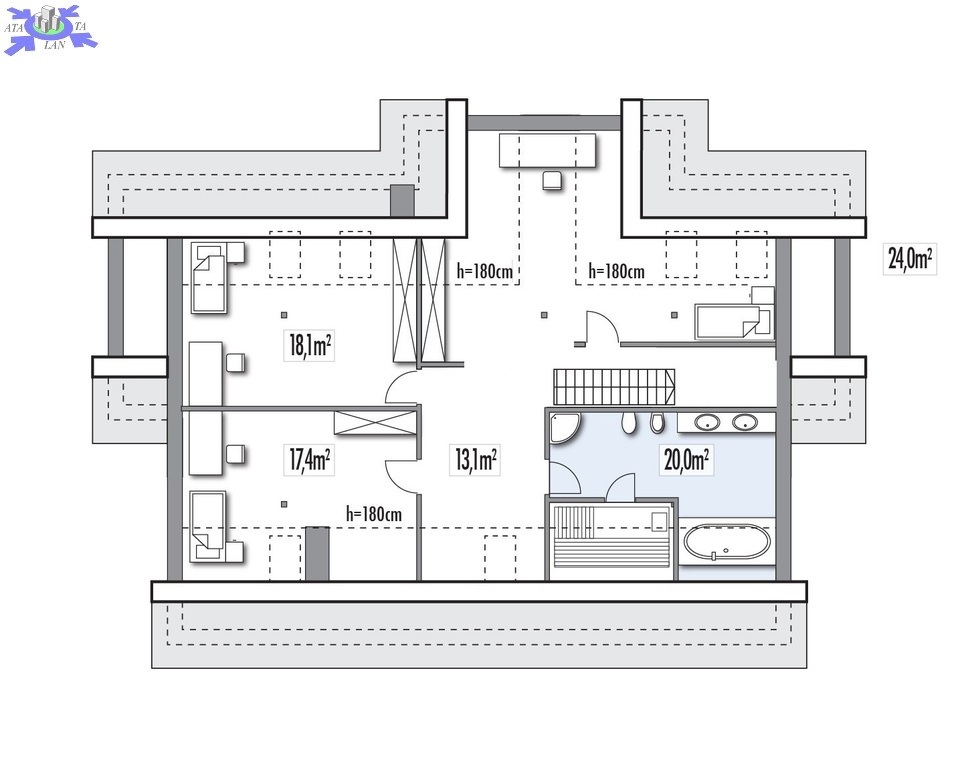
Na powierzchnię domu składa się

PARTER
- salonu
- oddzielnej kuchni
- kotłowni
- toalety
- garażu
- 3 sypialni
- łazienki

PODDASZE
- obecnie otwarta przestrzeń, możliwa aranżacja
- 3 sypialnie
- łazienka z wydzieloną sauną/ pralnią

Do domu doprowadzone główne zasilanie prądu.
Według warunków zabudowy w projekcie przewidziano
- własną studnię głębinową
- przydomową oczyszczalnie ścieków


Serdecznie zapraszamy do kontaktu.






Dodatkowe informacje: garaż

Kontakt do agenta

Atalanta Nieruchomości
Marii Konopnickiej 32
71-132 Szczecin
tel.: 914875042
email: info@atalanta.szczecin.pl
fax: 914875031

Wyślij zapytanie

Imię i Nazwisko
Telefon
E-mail
Treść zapytania

Wyrażam zgodę na przetwarzanie moich danych osobowych przez firmę dla celów związanych z działalnością pośrednictwa w obrocie nieruchomościami, jednocześnie potwierdzam, iż zostałem poinformowany o tym, iż będę posiadać dostęp do treści swoich danych do ich edycji lub usunięcia.

Wyślij ofertę

E-mail
© 2025 Atalanta Nieruchomości. Wszystkie prawa zastrzeżone.