Rodzaj oferty
dom blizniak ( sprzedaż )
Opis
Wybudowane, w standardzie deweloperskim domy w zabudowie bliźniaczej zlokalizowane w Mierzynie. Do każdego apartamentu przynależą dwa miejsce postojowe przed budynkiem. Standard wykończenia lokali deweloperski i obejmuje wykonanie m in. ogrzewania podłogowego w każdym z pomieszczeń, systemu domofonowego i instalacji pod kominek. Na lokal przysługuje 5-letnia rękojmia od dewelopera. Osiedle całkowicie ogrodzone, w którym przewidziano dwa osobne wjazdy z bramą otwieraną na pilota. Inwestycję wyróżnia niezaprzeczalnie interesująca i gustowna architektura z dozą elegancji. Energooszczędność domów mają zapewnić przyjęte rozwiązania architektoniczne izolacje ścian i podłóg, stolarka okienna.
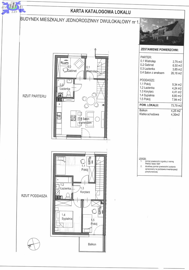
Urokliwe, kameralne osiedle w Mierzynie tworzyć będzie osiem nowoczesnych energooszczędnych domów dwurodzinnych, w których zaprojektowano szesnaście apartamentów. Lokale 5-pokojowe, każdy o powierzchni 73,79 m2, posiada balkon i przydomowy ogródek (powierzchnia działki wynosi w zależności od budynku wynosi między 115 a 250m2). Do każdego apartamentu przynależą dwa miejsce postojowe przed budynkiem. Standard wykończenia lokali deweloperski i obejmuje wykonanie m in. ogrzewania podłogowego w każdym z pomieszczeń, systemu domofonowego i instalacji pod kominek. Na lokal przysługuje 5-letnia rękojmia od dewelopera. Osiedle całkowicie ogrodzone, w którym przewidziano dwa osobne wjazdy z bramą otwieraną na pilota. Inwestycję wyróżnia niezaprzeczalnie interesująca i gustowna architektura z dozą elegancji. Energooszczędność domów mają zapewnić przyjęte rozwiązania architektoniczne izolacje ścian i podłóg, stolarka okienna. Na osiedlu postawiona będzie wiata ze stojakami dla rowerów.
Standard wykończenia budynku i lokali
KONSTRUKCJA
Ława fundamentowa
Ściany fundamentowe z bloczków betonowych na zaprawie cementowo -wapiennej
Izolacja przeciwwilgociowa pionowa i pozioma
Płyta stropowa betonowa wylewana
Schody wewnętrzne betonowe, zbrojone w całości wylewane na budowie
Ściany nośne zewnętrzne murowane z bloczków silikatowych
Ściany nośne wewnętrzne działowe murowane z bloczków silikatowych
Konstrukcja dachu krokwiowo - jętkowa z drewna
Płyta balkonowa betonowa
Kominy wentylacyjne z kształtek systemowych
IZOLACJE
Izolacje przeciwwilgociowe i przeciwwodne
Fundamenty, ściany w gruncie - papa termozgrzewalna, izolacje powłokowe typu lekkiego
Dach - folia paraizolacyjna, pokrycie dachówką ceramiczną płaską
Płyta balkonowa - mata uszczelniająca
2. Izolacje termiczne
Ściany fundamentowe - styropian
Strop w budynku - styropian
Ściany zewnętrzne części podziemnych - płyty ze styropianu o obniżonej chłonności
Ściany zewnętrzne części nadziemnych - styropian
Płyta balkonowa - styropian
Dach - wełna mineralna
WYKOŃCZENIE ZEWNĘTRZNE
Elewacja wykonana metodą lekko-mokrą, wykończona tynkiem cienkowarstwowym mineralnym
Obróbki blacharskie tytan cynk
Balustrada balkonowa - stalowa ocynkowana malowana proszkowo, wypełnienie z siatki cięto ciągnionej
Płyta balkonowa - wylewka - jastrych cementowy
Parapety zewnętrzne z kamienia
Rynny i rury spustowe PCV
Kominy ponad dachem tynkowane
Oświetlenie terenu od frontu/numer porządkowy na elewacji
STOLARKA
Stolarka okienna i drzwiowa (balkonowa) dwukomorowa PVC Premium, szklenie trzy szybowe
Wyłaz dachowy
Okna połaciowe obrotowe
Drzwi zewnętrzne z naświetlem w skrzydle z dwoma zamkami wyposażone w bolce antywłamaniowe
kasety RKS w oknach na parterze przygotowane do montażu rolet zewnętrznych ( bez pancerzy)
WYKOŃCZENIE WEWNĘTRZNE
Podłogi - wylewka jastrych cementowy zatarty na ostro w systemie ogrzewania podłogowego
Ściany działowe gr. 12 cm z bloczków silikatowych, tynk gipsowy maszynowy
Tynk gipsowy na ścianach murowanych i na stropie nad parterem
Sucha zabudowa z płyt GK stropu i skosów poddasza użytkowego na ruszcie stalowym (bez szpachlowania łączeń)
INSTALACJA WEWNĘTRZNA WODNA, KANALIZACYJNA i C.O.
Woda doprowadzona do punktów poboru wody w łazienkach i kuchni, zakończona zaworami
Kanalizacja rozprowadzona pod przybory łazienkowe i kuchenne z rur PCV
Podejście pod miskę ustępową wykonane na wysokości przystosowanej do montażu spłuczki podtynkowej na stelażu, bez montażu armatury
Ogrzewanie w systemie podłogowym, zasilane kotłem gazowym kondensacyjnym (dwufunkcyjnym) dodatkowo w łazienkach grzejnik drabinkowy
Szachty instalacyjne odkryte (niezabudowane)
INSTALACJA WEWNĘTRZNA ELEKTRYCZNA, RTV, INTERNETOWA, INTELIGENTNY DOM, DOMOFONOWA
Instalacja gniazd i oświetlenia podtynkowa z osprzętem ramkowym ( bez opraw oświetleniowych, sufitowych i kinkietowych)
Wewnętrzna tablica bezpiecznikowa (natynkowa) oraz skrzynka ZK ustawiona na granicy działki
Podejście pod zasilanie kuchni zakończone puszką instalacyjną wtynkową (bez kuchenki)
Okablowanie RTV/Internet rozmieszczone wg dokumentacji projektowej wraz z osprzętem ramkowym, nie podłączone do sieci zewnętrznej
Okablowanie pod montaż osprzętu Inteligentnej Automatyki Domu (opcja montażu systemu za dopłatą)
Instalacja domofonowa bez osprzętu
POZOSTAŁE INSTALACJE WEWNĘTRZNE
Instalacja wentylacji grawitacyjnej
Komin spalinowy od kominka
TEREN ZEWNĘTRZNY
Teren działki ogrodzony od strony ulicy ogrodzeniem systemowym panelowym wyposażonym w dwie furtki i dwie bramy wjazdowe , słupki ogrodzenia betonowe. Ogrodzenie od strony sąsiednich działem wykonana z siatki powlekanej na słupkach stalowych
Powierzchnie utwardzone stanowią - drogi wewnętrzne wykończone kostką betonową
Dojścia do budynków, miejsca gromadzenia odpadów oraz miejsca postojowe dla samochodów (bez zadaszenia) wykończone kostką polbruk - ekol
Oświetlenie wewnętrzne terenu - latarnie osiedlowe
Teren działki wokół budynków wyrównany i uprzątnięty
INSTALACJE ZEWNĘTRZNE
Kanalizacja sanitarna - odprowadzenie ścieków do szczelnego zbiornika bezodpływowego
Kanalizacja deszczowa - odprowadzenie wód opadowych do zbiorników retencyjnych na wodę deszczową
Woda zimna zasilana z wodociągu, komora wodomierzowa na terenie działki
Instalacja gazowa z sieci gazowej, szafka z zaworem główny i gazomierzem znajduje się w granicy działki przy ogrodzeniu frontowym
Instalacja elektryczna - szafa licznikowa budynku i szafka administracyjna znajdują się w granicy działki przy ogrodzeniu frontowym
Zakończenie budowy całego osiedla łącznie ośmiu budynków-XII 2025r.