Kursy walut NBP: USD 3,98 | EUR 4,32 | CHF 4,53 |

Jesteśmy członkiem:           

Wyszukiwarka
Notes
Zgłoś ofertę
Kalkulator
zgłoś ofertę
Mieszkania
Domy
Działki
Lokale
Obiekty
Szczegóły oferty
Rodzaj oferty
obiekt ( sprzedaż )
Numer oferty
422721
Miejscowość
SZCZECIN, WARSZEWO
Ulica
Kresowa
Cena
3 500 000 PLN kalkulator
Cena za mkw
7 000 PLN mkw
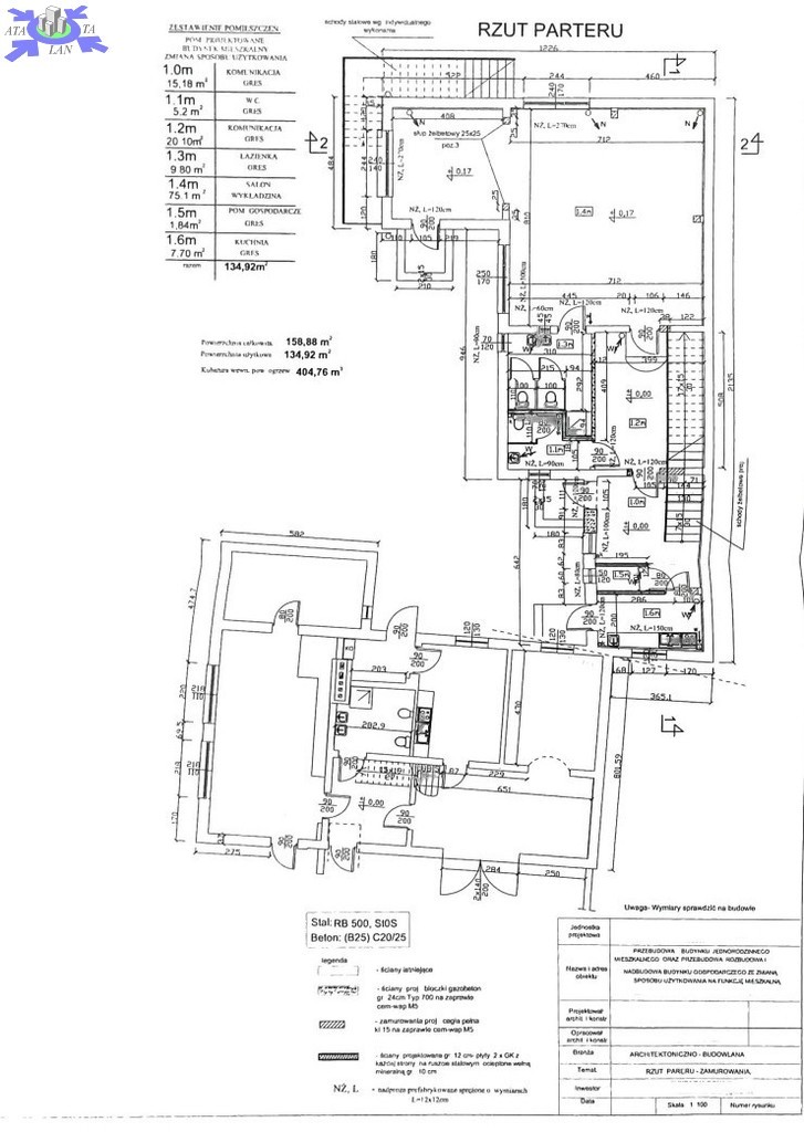
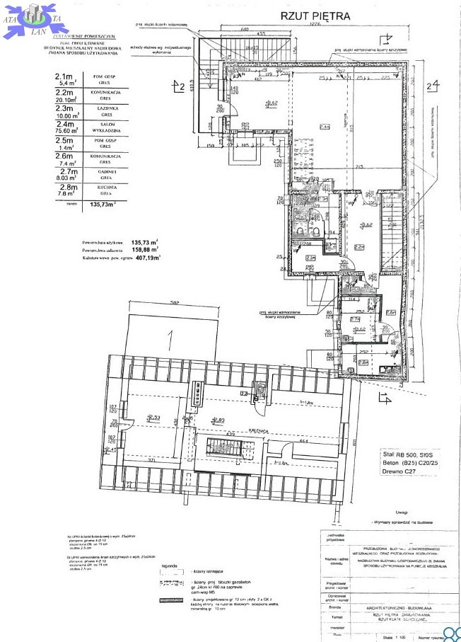
Powierzchnia
500.00 m2
Liczba pięter
1
Droga dojazdowa
utwardzona
Opis
Istnieje również możliwość najmu

Idealna inwestycja dla osób poszukujących atrakcyjnej propozycji biznesowej w branży edukacyjnej czy medycznej.

Lokalizacja
Zlokalizowana w sercu prestiżowej dzielnicy mieszkaniowej, nieruchomość oferuje doskonałe warunki do otwarcia nowoczesnego przedszkola, prywatnych gabinetów medycznych, ośrodka terapeutycznego.
Nieruchomość znajduje się w spokojnej i bezpiecznej okolicy.

Budynek obejmuje przestronną powierzchnię o łącznej wielkości około 500metrów kwadratowych oraz teren na plac zabaw i ogród. Przestronne pomieszczenia.

Duży podjazd wyłożony kostką brukową zapewnia miejsca parkingowe. Nieruchomość stanowi doskonałą inwestycję z perspektywą długoterminowego zwrotu z inwestycji. Wzrastające zapotrzebowanie na miejsca w przedszkolach w okolicy sprawia, że nieruchomość ta ma duży potencjał zarobkowy.

Budynek mieszkalno-usługowy rozbudowa i przebudowa na ośrodek wychowawczo opiekuńczy dla dzieci i młodzieży, obecnie w stanie deweloperskim zamkniętym. W częsci mieszkalnej wykończona kuchnia oraz łazienki.


Kontakt do agenta

Atalanta Nieruchomości
Marii Konopnickiej 32
71-132 Szczecin
tel.: 914875042
email: info@atalanta.szczecin.pl
fax: 914875031

Wyślij zapytanie

Imię i Nazwisko
Telefon
E-mail
Treść zapytania

Wyrażam zgodę na przetwarzanie moich danych osobowych przez firmę dla celów związanych z działalnością pośrednictwa w obrocie nieruchomościami, jednocześnie potwierdzam, iż zostałem poinformowany o tym, iż będę posiadać dostęp do treści swoich danych do ich edycji lub usunięcia.

Wyślij ofertę

E-mail
© 2025 Atalanta Nieruchomości. Wszystkie prawa zastrzeżone.