Kursy walut NBP: USD 3,98 | EUR 4,32 | CHF 4,53 |

Jesteśmy członkiem:           

Wyszukiwarka
Notes
Zgłoś ofertę
Kalkulator
zgłoś ofertę
Mieszkania
Domy
Działki
Lokale
Obiekty
Szczegóły oferty
Rodzaj oferty
mieszkanie ( sprzedaż )
Numer oferty
418835
Miejscowość
SZCZECIN, ŚRÓDMIEŚCIE
Ulica
Kazimierza Królewicza
Cena
699 000 PLN kalkulator
Cena za mkw
9 845,07 PLN mkw
Powierzchnia
71.00 m2
Liczba pokoi
3
Liczba pięter
4
Rodzaj kuchni
aneks
Stan mieszkania
idealny
Rok budowy
2013
Droga dojazdowa
asfaltowa
Opis
Oferta idealna dla osób pragnących prowadzić w części lokalu działalność (małe biuro lub gabinet), a w pozostałej mieszkać (w mieszkaniu 2-pokojowym).

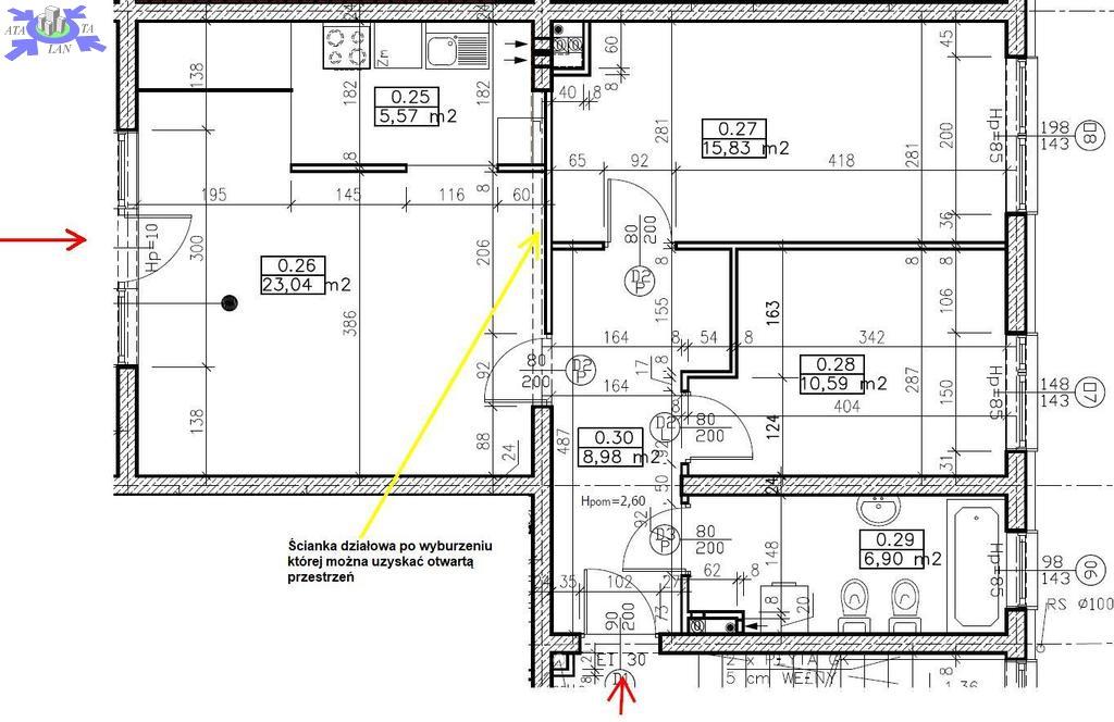
Mieszkanie 3 pokojowe, położone jest na parterze nowego, czteropiętrowego budynku w Śródmieściu Szczecina.

Mieszkanie aktualnie podzielono na część biurowo-usługową i część mieszkalną i obecnie składa się z
- w części mieszkalnej z osobnym wejściem z klatki schodowej (salon z aneksem kuchennym (16 m2), osobna sypialnia (10,5 m2), łazienka z wanną i toaletą (7 m2), przedpokój), okna zasłaniane są roletami zewnętrznymi, drzwi antywłamaniowe.
- w części biurowo-usługowej z osobnym wejściem z ulicy (sala sprzedaży/obsługi klienta ok. 20 m2, gabinet (ok. 4 m2), pomieszczenie socjalne z aneksem kuchennym oraz toaleta).

Część biurowo-usługowa jest idealna do prowadzenia działalności biurowej, usługowej, handlowej, gastronomicznej, medycznej, kosmetycznej, etc, posiada wysokie, aluminiowe witryny o szerokości 3 m, zasłaniane automatycznymi roletami zewnętrznymi.

Obie części przedzielone są jedynie ścianką działową - możliwe jest jej usunięcie i połączenie obu stref w celu uzyskania pierwotnego podziału pomieszczeń na mieszkanie 3 pokojowe.

Cały lokal wykończony, w stanie bardzo dobrym. Ściany i sufity gładzone, malowane, na podłodze wysokiej jakości panele, łazienka i toalety w glazurze i terakocie.

Ogrzewanie i ciepła woda z sieci miejskiej, w oddzielnym WC w części usługowej jest zamontowany elektryczny przepływowy podgrzewacz wody.

Do lokalu przynależy taras o powierzchni 8 m2.

Opłaty za media rozliczane są według odrębnych umów podpisanych z dostawcami, dodatkowo czynsz do wspólnoty (ok. 200 PLN).

Możliwy jest zakup 1-2 miejsc postojowych w garażu podziemnym i komórki lokatorskiej (za dodatkową opłatą).

Przed lokalem ogólnodostępne miejsca parkingowe (poza SPP). W sąsiedztwie lokale handlowe i lokale usługowe, gabinety lekarskie, sklepy sieciowe, w bliskiej odległości zlokalizowane są przystanki komunikacji miejskiej.


ZAKUP ZA GOTÓWKĘ - przedmiotem zakupu jest udział w nieruchomości wraz z prawem wyłącznego korzystania - proces sprzedaży mieszkań od dewelopera w tym konkretnym budynku zakończony został ustanowieniem sposobu korzystania i sprzedaniem udziałów wszystkim nabywcom. Wszystkie mieszkania w budynku mają identyczny status.

UWAGA! Mieszkanie idealne dla osób starszych oraz osób z niepełnosprawnością, poruszających się na wózku inwalidzkim - wejście do mieszkania BEZ BARIER!
Sprzedający rozważy propozycję zamianę na inny lokal mieszkalny w Szczecinie.

Możliwość zakupu z najemcami bądź bez najemców - dla osób chcących zamieszkać i korzystać z nieruchomości osobiście, wówczas gwarantujemy szybki termin wydania.

Uwaga dla Inwestorów oprócz tego mieszkania, w budynku przedmiotem sprzedaży mogą być też mieszkania o metrażach 28, 58, 117 m2 - możliwa jest sprzedaż mieszkań osobno, bądź w pakiecie (oferta szczególnie atrakcyjna dla inwestora poszukującego wielu mieszkań na wynajem w jednym miejscu, mieszkania są z powodzeniem wynajmowane od lat bez przerw).



Dodatkowe informacje: umeblowane, internet, TV kablowa, winda, garaż, parking

Kontakt do agenta

Atalanta Nieruchomości
Marii Konopnickiej 32
71-132 Szczecin
tel.: 914875042
email: info@atalanta.szczecin.pl
fax: 914875031

Wyślij zapytanie

Imię i Nazwisko
Telefon
E-mail
Treść zapytania

Wyrażam zgodę na przetwarzanie moich danych osobowych przez firmę dla celów związanych z działalnością pośrednictwa w obrocie nieruchomościami, jednocześnie potwierdzam, iż zostałem poinformowany o tym, iż będę posiadać dostęp do treści swoich danych do ich edycji lub usunięcia.

Wyślij ofertę

E-mail
© 2025 Atalanta Nieruchomości. Wszystkie prawa zastrzeżone.