Kursy walut NBP: USD 3,98 | EUR 4,32 | CHF 4,53 |

Jesteśmy członkiem:           

Wyszukiwarka
Notes
Zgłoś ofertę
Kalkulator
zgłoś ofertę
Mieszkania
Domy
Działki
Lokale
Obiekty
Szczegóły oferty
Rodzaj oferty
mieszkanie ( sprzedaż )
Numer oferty
413748
Miejscowość
SZCZECIN, CENTRUM
Ulica
al. Papieża Jana Pawła II
Cena
469 000 PLN kalkulator
Cena za mkw
9 457,55 PLN mkw
Powierzchnia
49.59 m2
Liczba pokoi
2
Piętro
4
Liczba pięter
4
Stan mieszkania
do wykonczenia
Rok budowy
1920
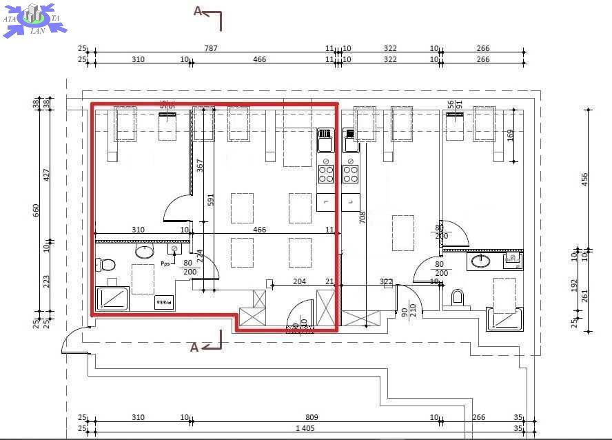
Opis

Na sprzedaż 2 pokojowe mieszkanie w samym centrum Szczecina blisko CH Kaskada przy al. Jana Pawła II.

Adaptacja poddasza
- pokój dzienny połączony z aneksem kuchennym 25,16 m2,
- sypialnia 11,54 m2,
- łazienka 6,42 m2,
- korytarz 3,67 m2.
Powierzchnia całkowita 49,59 m2 ( powierzchnia użytkowa 49,59 m2)
Mieszkanie wysokie , z widokiem na al. Fontann .
Łazienka wykończona w glazurze i terakocie , zamontowany biały montaż ( baterie , umywalka , muszla wc podwieszana, prysznic) . Łazienka przestronna z dużym lustrem.
Standard podłogi - płyta OSB oraz płyta ognioodporna, ściany i sufity wygładzone i pomalowane na biało, zamontowany piec dwu-funkcyjny wraz z grzejnikami
Drzwi wejściowe antywłamaniowe, ognioodporne.

Podana cena jest ceną brutto, zawiera podatek VAT - kupujący nie płaci 2 % podatku PCC.

Mieszkanie klimatyczne ,jasne ,słoneczne.




Dodatkowe informacje: internet, TV kablowa

Kontakt do agenta

Atalanta Nieruchomości
Marii Konopnickiej 32
71-132 Szczecin
tel.: 914875042
email: info@atalanta.szczecin.pl
fax: 914875031

Wyślij zapytanie

Imię i Nazwisko
Telefon
E-mail
Treść zapytania

Wyrażam zgodę na przetwarzanie moich danych osobowych przez firmę dla celów związanych z działalnością pośrednictwa w obrocie nieruchomościami, jednocześnie potwierdzam, iż zostałem poinformowany o tym, iż będę posiadać dostęp do treści swoich danych do ich edycji lub usunięcia.

Wyślij ofertę

E-mail
© 2025 Atalanta Nieruchomości. Wszystkie prawa zastrzeżone.