Kursy walut NBP: USD 3,98 | EUR 4,32 | CHF 4,53 |

Jesteśmy członkiem:           

Wyszukiwarka
Notes
Zgłoś ofertę
Kalkulator
zgłoś ofertę
Mieszkania
Domy
Działki
Lokale
Obiekty
Szczegóły oferty
Rodzaj oferty
lokal biurowy ( wynajem )
Numer oferty
409444
Miejscowość
SZCZECIN, CENTRUM
Cena
5 400 PLN
Cena za mkw
45 PLN mkw
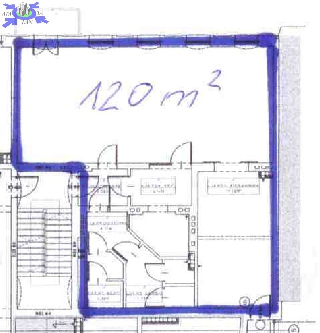
Powierzchnia
120.00 m2
Piętro
2
Liczba pięter
4
Rok budowy
1938
Droga dojazdowa
asfaltowa
Opis
Do wynajęcia komfortowy lokal biurowy znajdujący się na 2 piętrze kamienicy odrestaurowanej w roku 2010, zlokalizowanej w sercu Szczecina - blisko Deptaku Bogusława.
Na powierzchnię ok. 120 m2 składają się dwa duże pomieszczenia biurowe, zaplecze socjalne, toaleta oraz korytarz. Pomieszczenie biurowe doświetlone światłem dziennym oraz oświetleniem rastrowym. Na podłodze wykładzina, w korytarzu i pomieszczeniu socjalnym kafle. Toaleta w glazurze i terakocie.
Powierzchnia wyposażona jest w klimatyzację, rozprowadzono sieć komputerową, sieć telefoniczną, sieć alarmową. Do budynku podłączono światłowód. Ogrzewanie i ciepła woda z sieci miejskiej. W budynku nowoczesna winda, bardzo elegancka i reprezentacyjna klatka schodowa.
Przed budynkiem miejsca parkingowe ogólnodostępne, przy budynku znajdują się również dostępne miejsca parkingowe - istnieje możliwość ich wynajęcia za dodatkową miesięczną opłatą.
Opłaty eksploatacyjne prąd, woda, śmieci, ogrzewanie (miejskie - SEC). Podany czynsz jest kwotą netto - należy do niego doliczyć podatek VAT.
Kaucja do uzgodnienia z wynajmującym (wymagana w wysokości dwumiesięcznego czynszu najmu brutto).
Polecamy ze względu na atrakcyjną lokalizację oraz doskonałą wizualizację, bliskość Deptaku Bogusława. W budynku prestiżowi najemcy - doskonałe sąsiedztwo. Możliwość umieszczenia logo na elewacji budynku (bez dodatkowych opłat).

Dodatkowe informacje: ochrona, winda, parking

Kontakt do agenta

Atalanta Nieruchomości
Marii Konopnickiej 32
71-132 Szczecin
tel.: 914875042
email: info@atalanta.szczecin.pl
fax: 914875031

Wyślij zapytanie

Imię i Nazwisko
Telefon
E-mail
Treść zapytania

Wyrażam zgodę na przetwarzanie moich danych osobowych przez firmę dla celów związanych z działalnością pośrednictwa w obrocie nieruchomościami, jednocześnie potwierdzam, iż zostałem poinformowany o tym, iż będę posiadać dostęp do treści swoich danych do ich edycji lub usunięcia.

Wyślij ofertę

E-mail
© 2025 Atalanta Nieruchomości. Wszystkie prawa zastrzeżone.