Rodzaj oferty
dom blizniak ( sprzedaż )
Opis
Na sprzedaż bliźniak - dwulokalowy, który znajduje się w miejscowości Pilchowo na kameralnym osiedlu w otulinie lasu.
Domy wykonane z najwyższą starannością oraz dbałością o każdy detal.
Nieruchomość można kupić w dwóch wariantach
STAN DEWELOPERSKI ZAMKNIĘTY -
stan deweloperski zamknięty Premium w cenie 122 9000 zł
- ogrzewanie podłogowe na poziomie parteru
- instalacje
- drzwi antywłamaniowe klasa RC2 - szyby w drzwiach klasa P4 "Wiśniowski"
- okna 3 szybowe "Sokółka" - odporność na obciążenie wiatru klasa C4, wodoszczelność - klasa 7A, przepuszczalność powietrza -3, właściwości
akustyczne - Rw(CCtr) NPD, przenikalność ciepła =-UW 0.80 W/m2k - Ciepły montaż okien (warstwowy)
- posadzki,
- tynki,
- pompa ciepła " Nibe "
- brama wjazdowa "Wiśniowski"
- zagospodarowanie terenu,
- dachówka - blachodachówka z tłoczeniami "Braas"
- kominy spalinowe pod kominek " Hoch"
* Ściany wewnętrzne nośne
- wykończenie ścian tynk cementowo-wapienne
- ściany murowane z bloczków silikatowych kl. 15gr -24cm na zaprawie cienkowarstwowej
- tynk cementowo-wapienne
*Ściany wewnętrzne działowe
- tynk cementowo-wapienne
- ściana murowana z bloczków silikatowych kl. 15 gr. 12cm na zaprawie cienkowarstwowej
- tynk cementowo-wapienne
*strop międzykondygnacyjny
- posadzka - warstwa wykończeniowa gr. 2cm
- wylewka betonowa gr. 7cm - grubość wylewki dostosowana do instalacji ogrzewania podłogowego
- płyta żelbetowa gr. 16cm
- tynk cementowo-wapienny
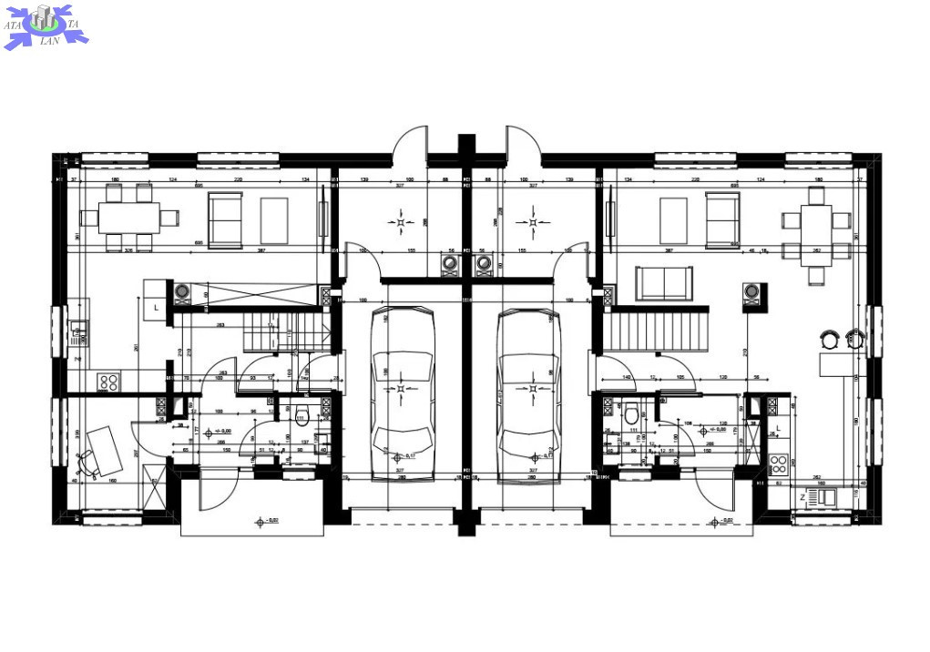
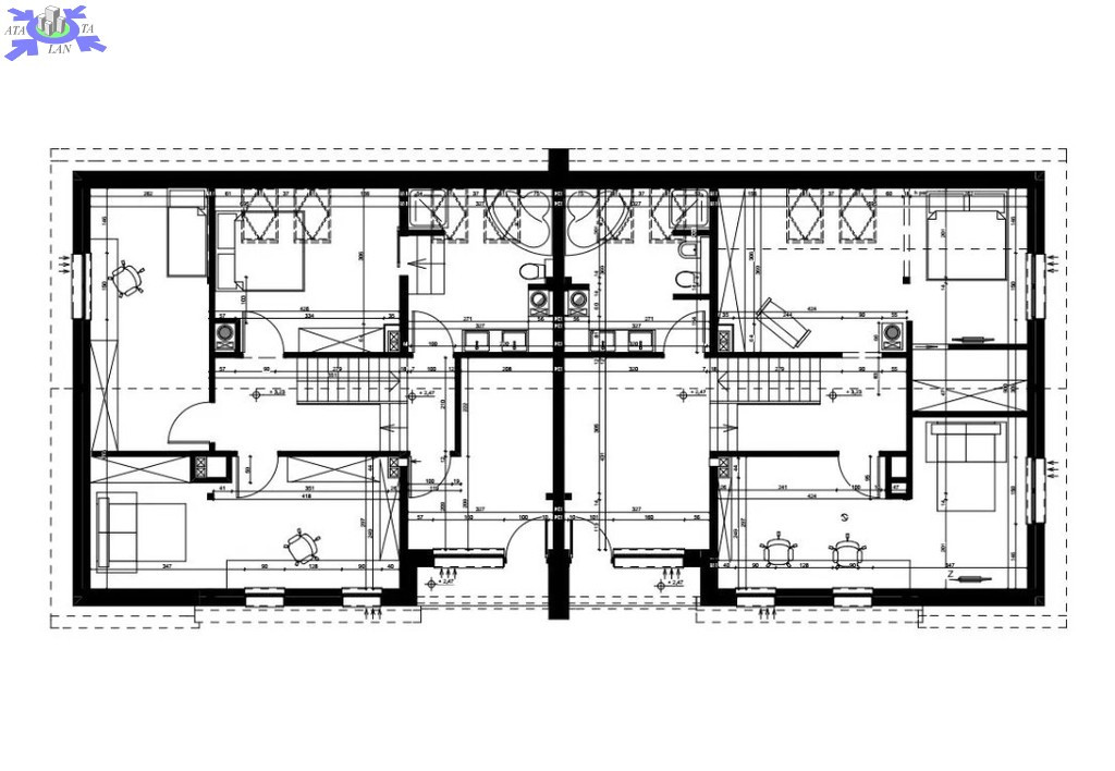
Do każdego lokalu przynależy działka o powierzchni ok. 436 m2
Każdy lokal, o powierzchni 155 m2 (pow. użytkowa lokalu -136,7m2, pow. garażu - 18,8m2) może pełnić funkcję komfortowego rodzinnego domu, ale również może być wykorzystany do prowadzenia działalności gospodarczej.
Kupujący nie płaci 2%podatku PCC
Zapraszam na prezentację