Kursy walut NBP: USD 3,98 | EUR 4,32 | CHF 4,53 |

Jesteśmy członkiem:           

Wyszukiwarka
Notes
Zgłoś ofertę
Kalkulator
zgłoś ofertę
Mieszkania
Domy
Działki
Lokale
Obiekty
Szczegóły oferty
Rodzaj oferty
dom wolnostojacy ( sprzedaż )
Numer oferty
401615
Miejscowość
SZCZECIN, WIELGOWO
Cena
2 000 000 PLN kalkulator
Cena za mkw
4 848,48 PLN mkw
Powierzchnia
412.50 m2
Pow. działki
1807.00 m2
Liczba pokoi
4
Liczba pięter
1
Rodzaj kuchni
otwarta
Rok budowy
2009
Droga dojazdowa
utwardzona
Opis
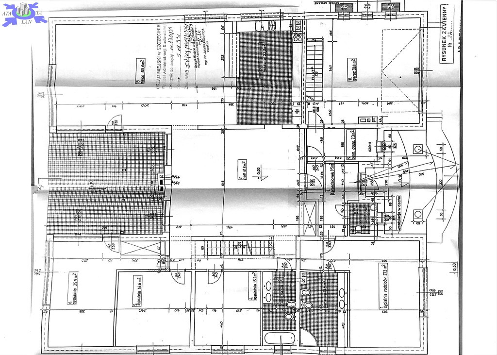
Wielgowo, Powierzchnia działki 1807 m2
Komfortowy DOM jednorodzinny, wolnostojący, parterowy z poddaszem użytkowym zlokalizowany przy lesie z pełnowymiarowym kortem tenisowym.
Budynek na rzucie w kształcie litery H.
Dach kopertowy dwudzielny.
Garaż dwustanowiskowy 38 m2 wbudowany w bryłę budynku z automatycznie otwieraną bramą.

Rok budowy 2009

Powierzchnia użytkowa domu 301,50 m2
Powierzchnia całkowita 412,50 m2
Powierzchnia zabudowy 425,90 m2
Wysokość budynku 6,56 m
Wysokość pomieszczeń 2,70 m

PARTER
KUCHNIA + SALON - 22,30 M2+ 60,6 M2 = 82,90 M2
Przestronny salon z bezpośrednim wyjściem na taras i ogród połączony z otwartą, jasną, w pełni umeblowana kuchnią z wyspą kuchenną. Wielkoformatowe okna tarasowe. TARAS zadaszony z wymurowanym kominkiem.
HALL (SALA KOMINKOWA) - 61,8 M2
SYPIALNIA z garderobą z bezpośrednim wejściem do prywatnej łazienki z kabiną prysznicową, wanną, WC - 27,3 M2 + ŁAZIENKA (10,6 M2)
SYPIALNIA z wyjściem na taras - 25,39 M2
SYPIALNIA - 15,2 M2
SYPIALNIA - 16,6 M2
ŁAZIENKA z wanną, zlewem, WC - 7,8 M2
PRZEDSIONEK - 9,5 M2
POMIESZCZENIE GOSPODARCZE, pralnia, zlew gospodarczy- 7,3 M2
TOALETA dla gości - 2,8 M2
GARAŻ DWUSTANOWISKOWY Z ZAMYKANĄ BRAMĄ GARAŻOWĄ - 33,8 M2
PIWNICA (kotłownia) 30,80 M2
PODDASZE (OTWARTA PRZESTRZEŃ DO ZAARANŻOWANIA Z ŁAZIENKĄ I OPCJĄ URZĄDZENIA KUCHNI) - 55 M2

OGRÓD w pełni zagospodarowany z dojrzałą i pielęgnowaną roślinnością.
Teren w pełni ogrodzony z automatycznie otwieraną bramą wjazdową, miejsca postojowe na terenie działki.

Miejsce dla osób ceniących sobie walory przyrody, spokój, ciszę i bliskość lasu.

ZAPRASZAM NA PREZENTACJĘ

Dodatkowe informacje: umeblowane, ochrona, piwnica, garaż

Kontakt do agenta

Atalanta Nieruchomości
Marii Konopnickiej 32
71-132 Szczecin
tel.: 914875042
email: info@atalanta.szczecin.pl
fax: 914875031

Wyślij zapytanie

Imię i Nazwisko
Telefon
E-mail
Treść zapytania

Wyrażam zgodę na przetwarzanie moich danych osobowych przez firmę dla celów związanych z działalnością pośrednictwa w obrocie nieruchomościami, jednocześnie potwierdzam, iż zostałem poinformowany o tym, iż będę posiadać dostęp do treści swoich danych do ich edycji lub usunięcia.

Wyślij ofertę

E-mail
© 2025 Atalanta Nieruchomości. Wszystkie prawa zastrzeżone.