Kursy walut NBP: USD 3,98 | EUR 4,32 | CHF 4,53 |

Jesteśmy członkiem:           

Wyszukiwarka
Notes
Zgłoś ofertę
Kalkulator
zgłoś ofertę
Mieszkania
Domy
Działki
Lokale
Obiekty
Szczegóły oferty
Rodzaj oferty
dom blizniak ( sprzedaż )
Numer oferty
401597
Miejscowość
MIERZYN
Cena
989 000 PLN kalkulator
Cena za mkw
8 990,91 PLN mkw
Powierzchnia
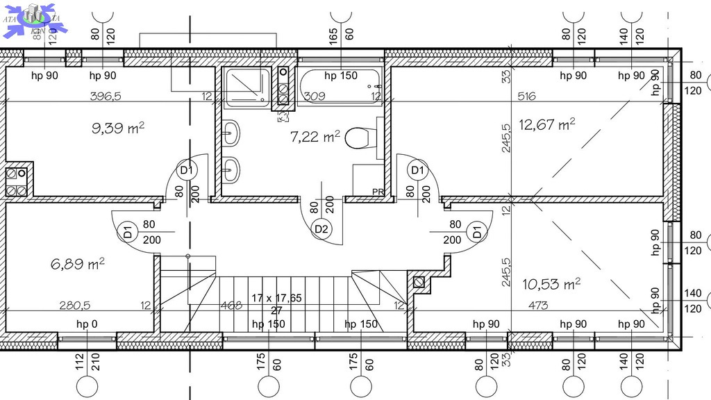
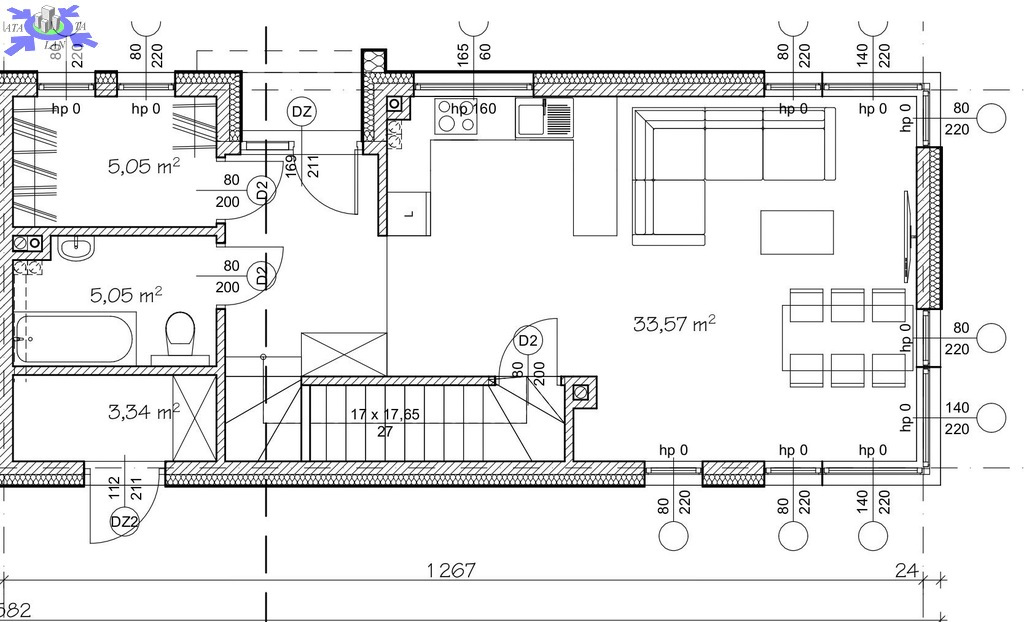
110.00 m2
Pow. działki
350.00 m2
Liczba pokoi
5
Liczba pięter
1
Rodzaj kuchni
aneks
Stan domu
do wykonczenia
Rok budowy
2022
Droga dojazdowa
z kostki brukowej
Opis
Nowo powstająca inwestycja mini osiedla 12 lokali mieszkalnych jednorodzinnych w zabudowie bliźniaczej, po 110 m powierzchni użytkowej na działkach po ok 350 m2. Ceny od 939 tys zł. Inwestycja zostanie oddana w stanie deweloperskim III kwartał 2023 rok. przeniesienie prawa własności IV kwartał 2023r. Domy wybudowane z bloczków sylikatowych, ocieplone styropianem 15 cm, okna trójszybowe, dachówka ceramiczna. CO i CW piec gazowy kondensacyjny ogrzewanie podłogowe w całości budynku. Dojazd do posesji drogą wewnętrzną wyłożoną kostką polbrukową. Do każdego lokalu przynależą po dwa miejsca postojowe. Chcąc zapoznać się z aktualną ofertą proszę o kontakt z maklerem prowadzącym.

Kontakt do agenta

Atalanta Nieruchomości
Marii Konopnickiej 32
71-132 Szczecin
tel.: 914875042
email: info@atalanta.szczecin.pl
fax: 914875031

Wyślij zapytanie

Imię i Nazwisko
Telefon
E-mail
Treść zapytania

Wyrażam zgodę na przetwarzanie moich danych osobowych przez firmę dla celów związanych z działalnością pośrednictwa w obrocie nieruchomościami, jednocześnie potwierdzam, iż zostałem poinformowany o tym, iż będę posiadać dostęp do treści swoich danych do ich edycji lub usunięcia.

Wyślij ofertę

E-mail
© 2025 Atalanta Nieruchomości. Wszystkie prawa zastrzeżone.