Kursy walut NBP: USD 3,98 | EUR 4,32 | CHF 4,53 |

Jesteśmy członkiem:           

Wyszukiwarka
Notes
Zgłoś ofertę
Kalkulator
zgłoś ofertę
Mieszkania
Domy
Działki
Lokale
Obiekty
Szczegóły oferty
Rodzaj oferty
mieszkanie ( sprzedaż )
Numer oferty
381801
Miejscowość
SZCZECIN, CENTRUM
Ulica
Bolesława Krzywoustego
Cena
519 000 PLN kalkulator
Cena za mkw
5 984,78 PLN mkw
Powierzchnia
86.72 m2
Liczba pokoi
3
Piętro
4
Liczba pięter
4
Stan mieszkania
do wykonczenia
Rok budowy
1920
Opis
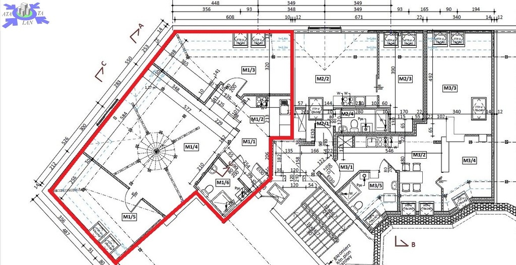
Na sprzedaż 3 pokojowe mieszkanie w centrum Szczecina blisko CH Turzyn.
Mieszkanie o powierzchni użytkowej 79,57 m2 ( pow. całkowita ok.86 m2)
- 3 pokoje -15 m2,29m2 i 17 m2
-kuchnia 7,90 ( można połączyć z salonem)
-łazienka 4,37 m2
-przedpokój -5,43 m2.
Mieszkanie klimatyczne , z wieżyczką ,narożne ( okna na trzy strony świata).
Lokal wykończony w stanie developerskim ( ściany gładzone i pomalowane ,na podłogach płyta OSB oraz płyta ognioodporna)
Wszystkie instalacje nowe ( elektryczna, gazowa i wodno-kanalizacyjna) ,drzwi zewnętrzne antywłamaniowe( ognioodporne) ,okna PCV duże ,piec gazowy dwu-funkcyjny ,grzejniki .
Czynsz do zarządcy ok. 300 zł.
Mieszkanie klimatyczne ,jasne, słoneczne, duże okna .
Kupujący nie płaci podatku 2 procent PCC.
Mieszkanie świetnie położone, w bliskim sąsiedztwie CH Kaskada.
Blisko przystanki komunikacji miejskiej ,sklepy.
Rzut mieszkania ,a zdjęcia z poprzednich realizacji.

Dodatkowe informacje: internet, TV kablowa

Kontakt do agenta

Atalanta Nieruchomości
Marii Konopnickiej 32
71-132 Szczecin
tel.: 914875042
email: info@atalanta.szczecin.pl
fax: 914875031

Wyślij zapytanie

Imię i Nazwisko
Telefon
E-mail
Treść zapytania

Wyrażam zgodę na przetwarzanie moich danych osobowych przez firmę dla celów związanych z działalnością pośrednictwa w obrocie nieruchomościami, jednocześnie potwierdzam, iż zostałem poinformowany o tym, iż będę posiadać dostęp do treści swoich danych do ich edycji lub usunięcia.

Wyślij ofertę

E-mail
© 2025 Atalanta Nieruchomości. Wszystkie prawa zastrzeżone.